Satılır obyekt 338.3 m²

Bakı, 8-ci kilometr · A. M. Şərifzadə küç. 241 · Bina.Az

Satış EML-033757 7
10 dəq piyada Avtovağzal metrosu

Əmlakın təsviri

Kateqoriya

Obyekt

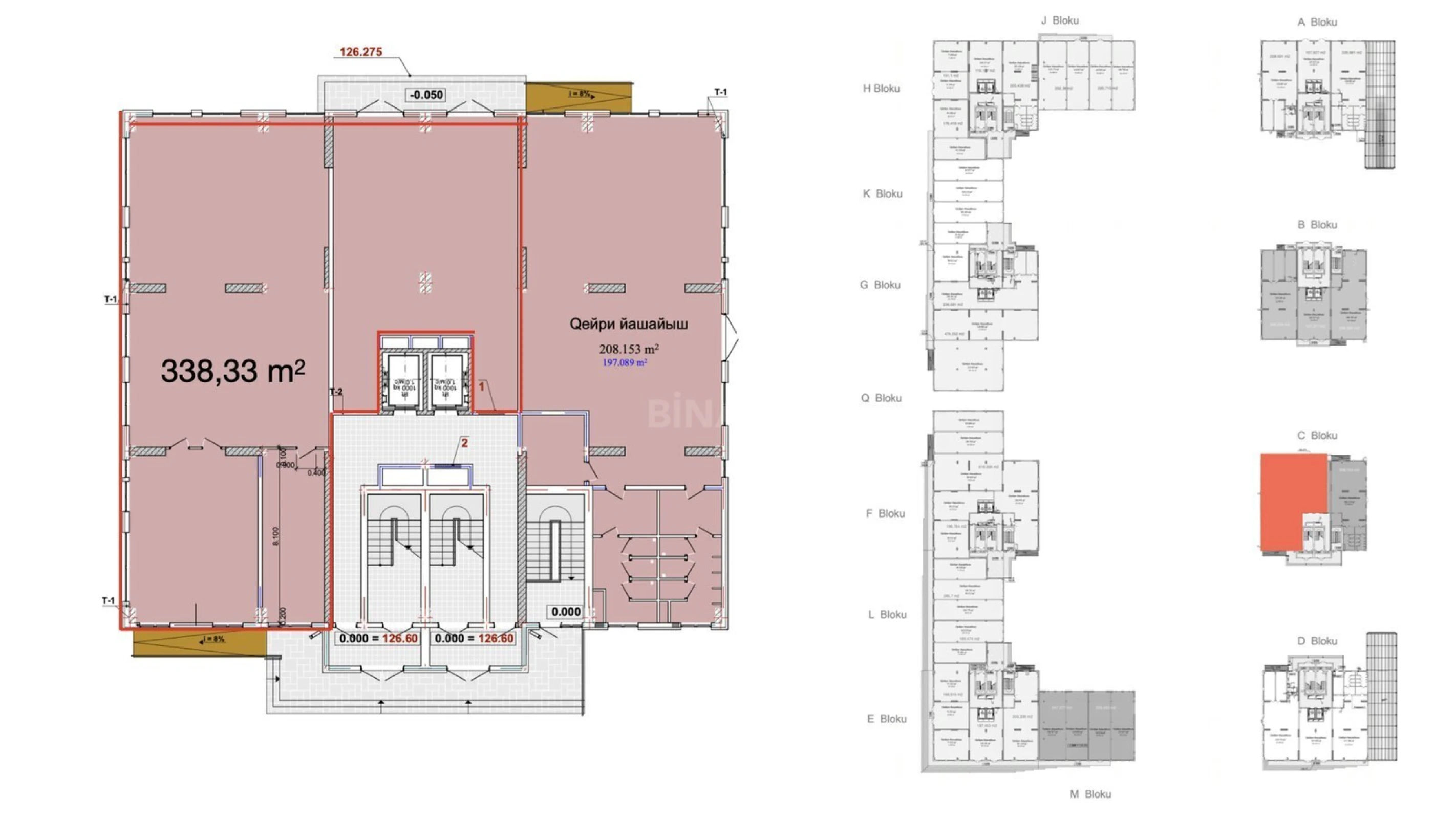
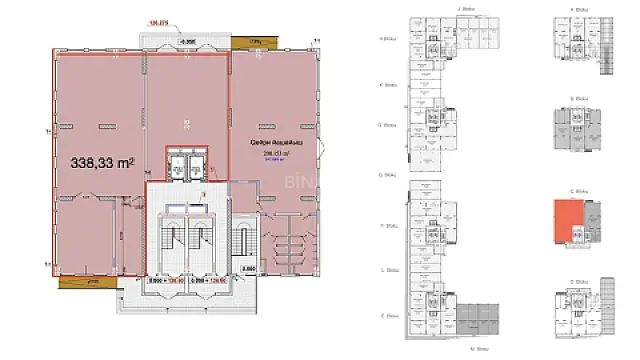
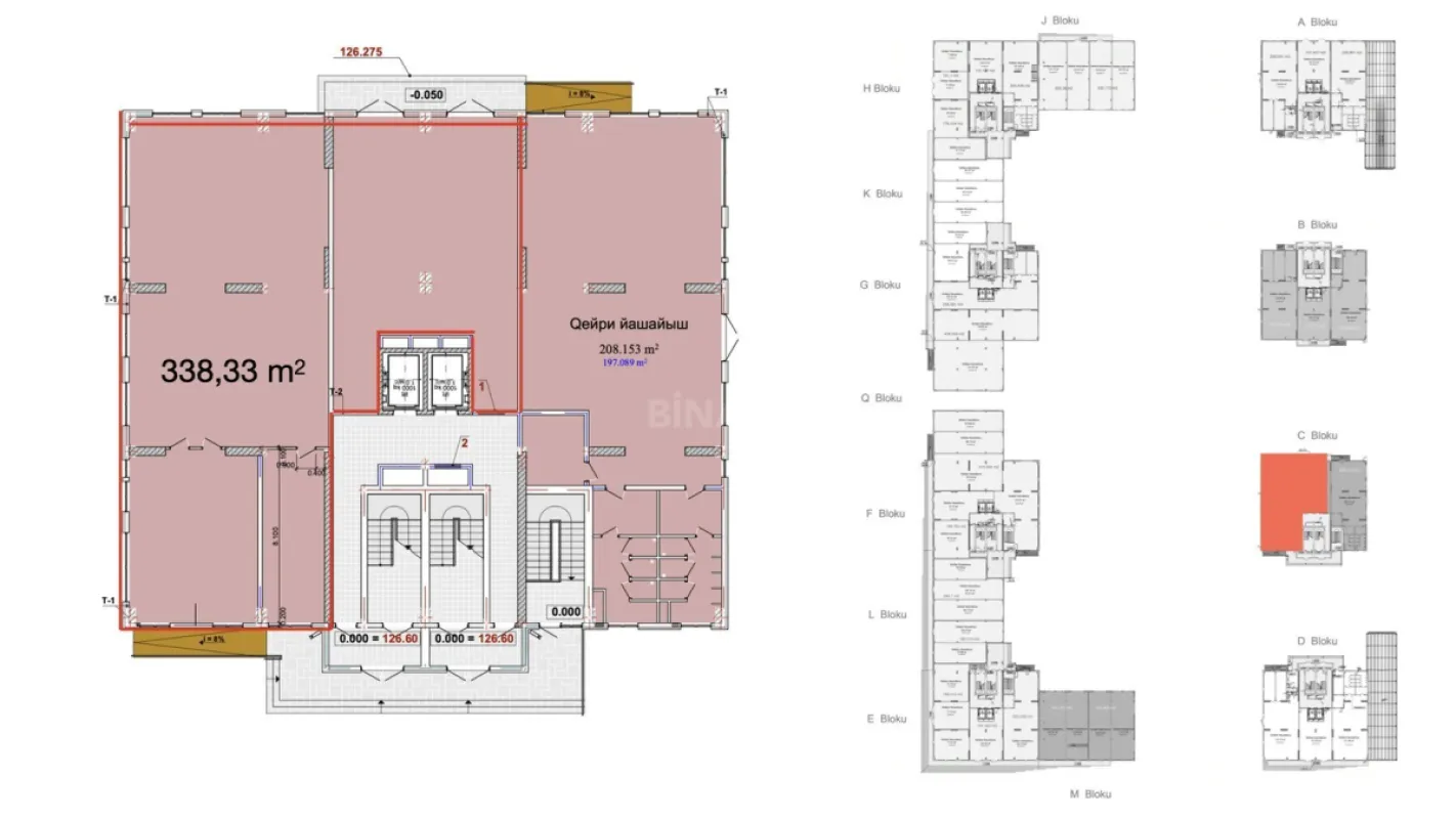
Ümumi sahə

338.30m²

Təsvir

Avant Vista — Yasamal Birbaşa tikinti şirkətindən

2 700+ mənzilli yaşayış ərazisi (7,3 ha)

1-ci mərtəbə Sahələr: 50 – 3 000 m² Tavan: 4,4 m Ayrı giriş Bölünmə / birləşmə

Uyğundur: ofis, salon, kimyəvi təmizləmə, xidmətlər Kofeşop, supermarket, aptek, klinika

30% ilkin ödənişlə hissə-hissə ödəniş Rayonda digər layihələrdə də sahələr var

Avant Vista — Ясамал Продажа от застройщика

Жилой кластер 2 700+ квартир (7,3 га)

1-й этаж Площади: 50 – 3 000 м² Потолки: 4,4 м Отдельный вход Деление / объединение

Подходит: офис, салон, химчистка, услуги Кофешоп, супермаркет, аптека, клиника

Рассрочка от 30% Есть площади и в других проектах района

Xəritə

Bazar analitikası

Qiymət / m²

3,000 AZN/m²

Ortadan 1.4% baha

Rayon ort: 2,957 AZN/m²

8-ci kilometr

2 957 AZN/m²

Son 6 ay: -2.2%

Rayon orta qiymət

Market

Zeifleme

Son 3 ay: -23.00%

Aktiv: 1651 Yeni: 926 Tələb: Aşağı
1 014 840 AZN
E

Elan sahibi

Etibarlı
Sürətli
Real foto
1 nəfər son 24 saatda baxıb
Çəkiliş sifarişi

Bu sayt düzgün işləmək üçün cookie-lərdən istifadə edir. Ətraflı