Satılır obyekt 187.5 m²

Bakı · Abbas Mirzə Şərifzadə küç. · Bina.Az

Satış EML-079319 7
8 dəq piyada Avtovağzal metrosu

Əmlakın təsviri

Kateqoriya

Obyekt

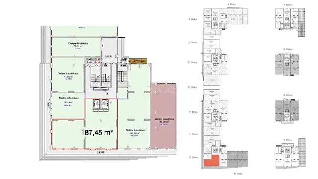
Ümumi sahə

187.50m²

Təsvir

Avant Vista — Yasamal Birbaşa tikinti şirkətindən

2 700+ mənzilli yaşayış ərazisi (7,3 ha)

1-ci mərtəbə Sahələr: 50 – 3 000 m² Tavan: 5,4 m Ayrı giriş Bölünmə / birləşmə

Uyğundur: ofis, salon, kimyəvi təmizləmə, xidmətlər Kofeşop, supermarket, aptek, klinika

30% ilkin ödənişlə hissə-hissə ödəniş Rayonda digər layihələrdə də sahələr var

Рядом с супермаркетом Араз

Avant Vista — Ясамал Продажа от застройщика

Жилой кластер 2 700+ квартир (7,3 га)

1-й этаж Площади: 50 – 3 000 м² Потолки: 5,4 м Отдельный вход Деление / объединение

Подходит: офис, салон, химчистка, услуги Кофешоп, супермаркет, аптека, клиника

Рассрочка от 30% Есть площади и в других проектах района

Xəritə

937 250 AZN
A

Avant Group

Etibarlı
Sürətli
Real foto
1 nəfər son 24 saatda baxıb
Çəkiliş sifarişi

Bu sayt düzgün işləmək üçün cookie-lərdən istifadə edir. Ətraflı