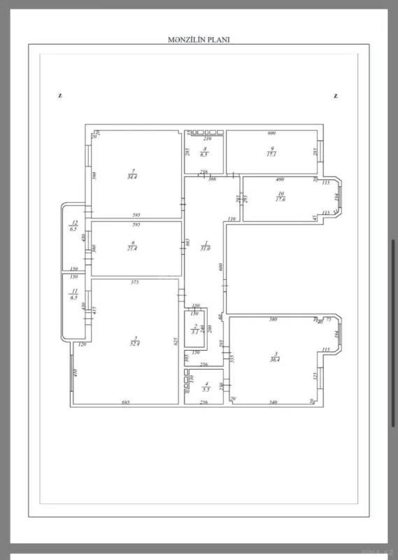
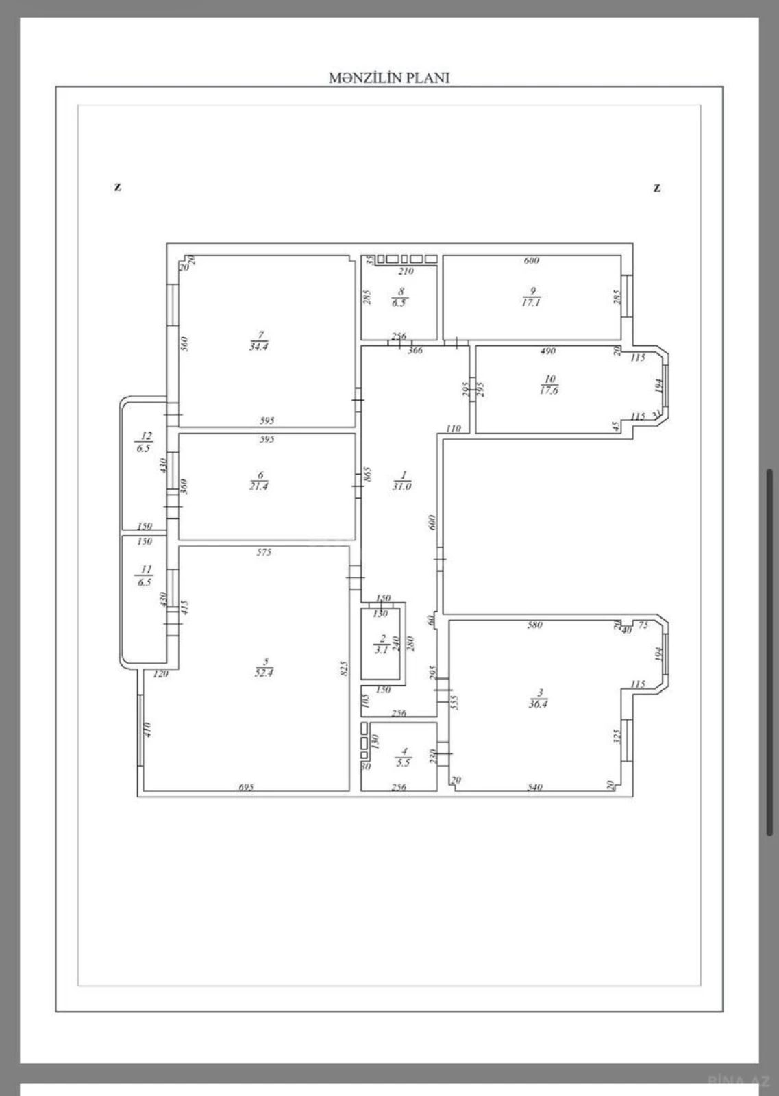
Satılır 5 otaqlı mənzil 252 m²

Bakı, Xətai · Yusif Səfərov küç., 27. · Bina.Az

Satış EML-126705 5
13 dəq piyada Gənclik metrosu

Əmlakın təsviri

Kateqoriya

Mənzil

Ümumi sahə

252.00m²

Otaq sayı

5

Mərtəbə

8 / 10

Təsvir

COX COX COX TƏCİLİ SATILIR !!! BELƏ FÜRSƏT HƏR ZAMAN QARŞINIZA ÇIXMIR!

Dəyərli müştərilər, bu binada çox nadir hallarda satışa mənzil çıxarılır və bu gün qarşınızdakı istisna fürsətdir. 📍 Baku Crystal Plaza – prestij, komfort və statusun ünvanı. 🏢 Hər mərtəbədə cəmi 1 mənzil – maksimum məxfilik və rahatlıq.

⏰ Diqqət! Mənzil yalnız 15 gün ərzində satışda qalacaq. Bu müddət ərzində satılmasa, satış tam dayandırılacaq. Belə imkanlar gözləməz, tez qərar verən qazanır!

Qeyd: Layihəyə diqqətlə baxın – bu mənzil unikal potensiala malikdir. İstəyə uyğun olaraq, alındıqdan sonra rahatlıqla iki ədəd 3 otaqlı (skvaznoy) layihəli mənzilə çevrilə bilər. Hər iki mənzil ideal planlama, işıqlı otaqlar və mükəmməl yaşayış rahatlığı təqdim edəcək.

📞 Bu fürsəti qaçırmamaq üçün əlavə məlumat almaq istəyirsinizsə, elə indi mənimlə əlaqə saxlayın!

Xəritə

Bazar analitikası

Qiymət / m²

2,579 AZN/m²

Ortadan 12.9% sərfəli

Rayon ort: 2,963 AZN/m²

Xətai

2 963 AZN/m²

Son 6 ay: -4.1%

Rayon orta qiymət

Market

Zeifleme

Son 3 ay: -4.30%

Aktiv: 9773 Yeni: 4636 Tələb: Aşağı
650 000 AZN
Б

Бабек Гейдарзаде

Etibarlı
Sürətli
Real foto
3 nəfər son 24 saatda baxıb
Çəkiliş sifarişi

Bu sayt düzgün işləmək üçün cookie-lərdən istifadə edir. Ətraflı