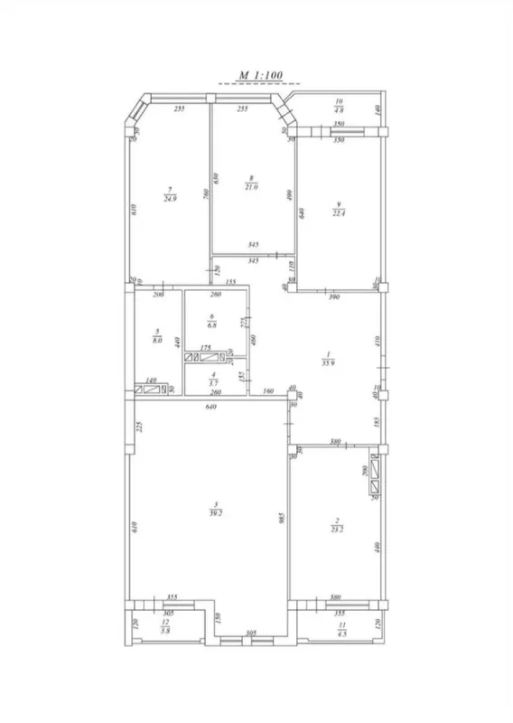
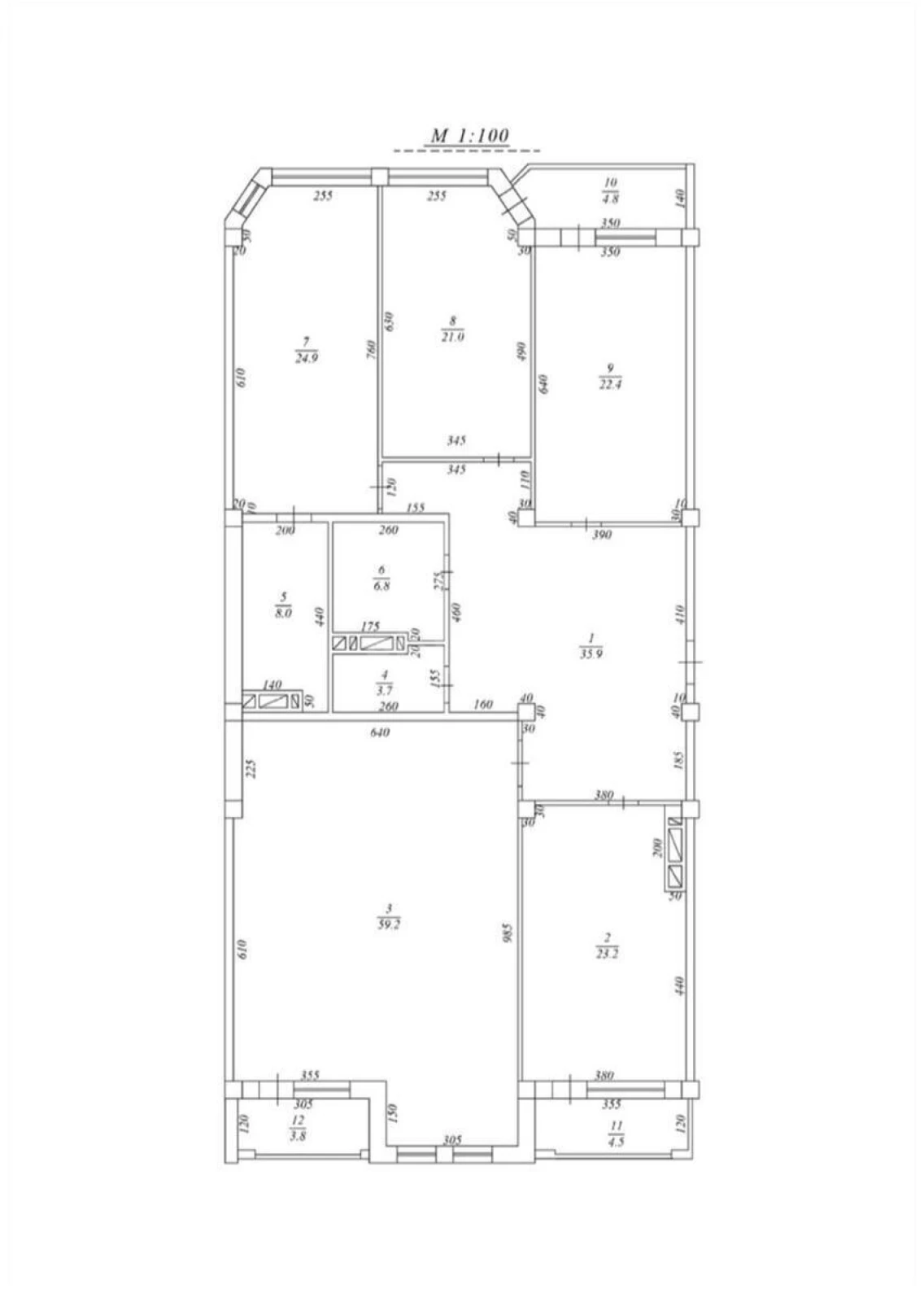
Satılır 4 otaqlı mənzil 209.8 m²

Bakı · Nizami küçəsi · Bina.Az

Satış EML-0958cff5-890e-424e-8219-affc31870027 1
12 dəq piyada 28 May metrosu

Əmlakın təsviri

Kateqoriya

Mənzil

Ümumi sahə

209.80m²

Otaq sayı

4

Mərtəbə

13 / 23

Təsvir

Port bakunun arxasindaki bina ferrarinin ustu elave melumat gorus zamani makler narahat etmesin

Xəritə

950 000 AZN
R

Ramil

Etibarlı
Sürətli
Real foto
1 nəfər son 24 saatda baxıb
Çəkiliş sifarişi

Bu sayt düzgün işləmək üçün cookie-lərdən istifadə edir. Ətraflı