Satılır 4 otaqlı mənzil 200 m²

Bakı, Nizami · İzmir küçəsi · Bina.Az

Satış EML-049604 11
13 dəq piyada Nizami metrosu

Əmlakın təsviri

Kateqoriya

Mənzil

Ümumi sahə

200.00m²

Otaq sayı

4

Mərtəbə

16 / 20

Təsvir

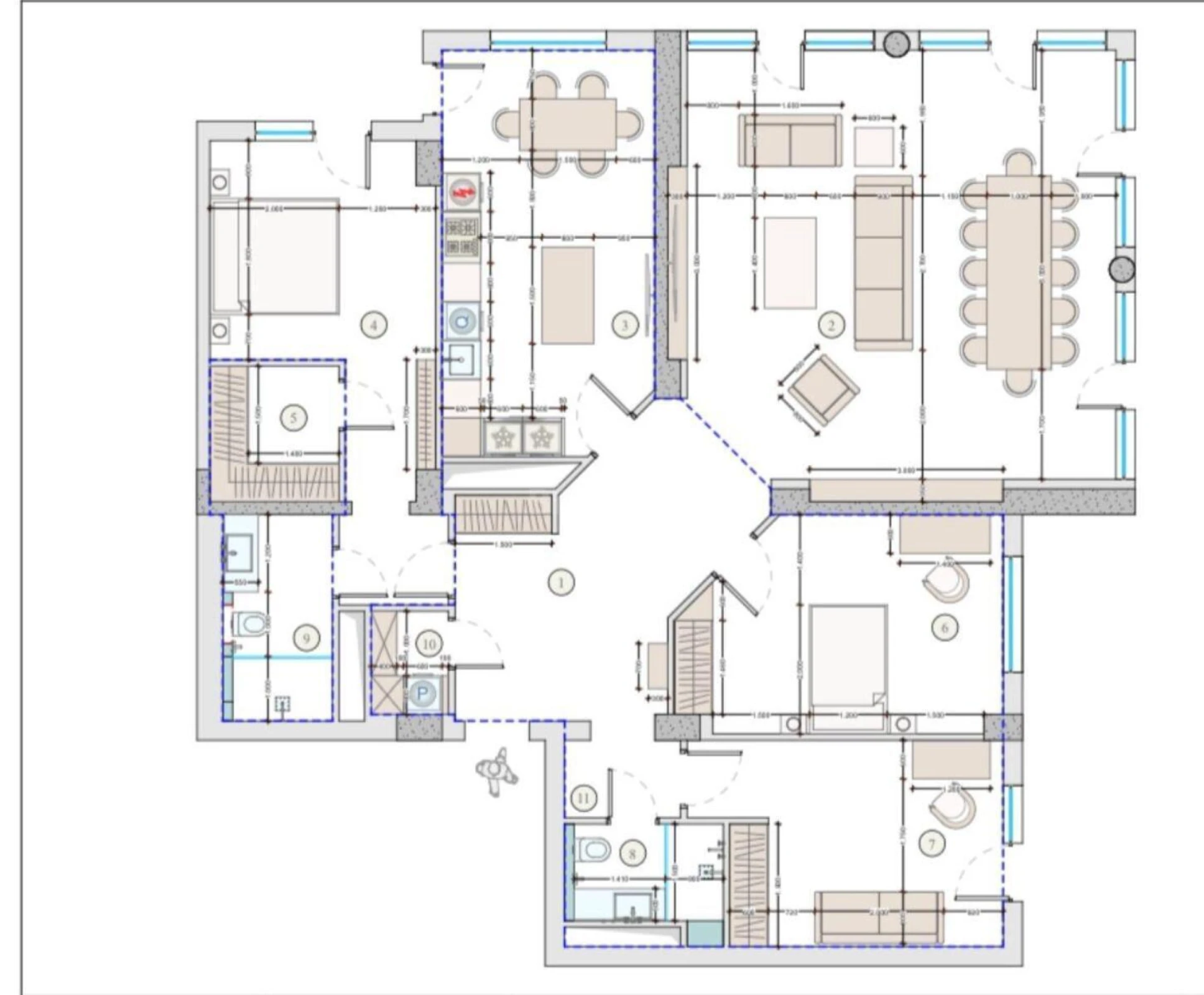
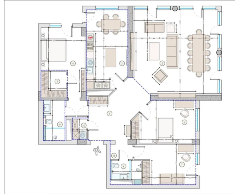
İzmir Residence yaşayış kompleksində yerləşən bu 200 m² sahəli, kupçalı 4 otaqlı mənzil genişliyi və rahat planlaşdırması ilə seçilir. Mənzildə təmir işlərinin böyük hissəsi – təxminən 60 faizi artıq görülüb və bu da alıcıya son toxunuşları öz zövqünə uyğun şəkildə tamamlamaq imkanı yaradır. Yelçəkən planlaşdırmaya malik olan mənzil gün işığını hər tərəfdən qəbul edir. Bütün otaqların ayrıca balkonu mövcuddur, həmçinin istirahət üçün ideal olan geniş terras var.

Binada mərkəzi istilik sistemi quraşdırılıb, kommunal xərclər isə sərfəlidir – 1 kv.m üçün 1.25 AZN. Mənzildə qaz mövcuddur və mərkəzi AUX brendinə məxsus kondisioner sistemi çəkilib. Planlaşdırmaya 3 yataq otağı, geniş qonaq otağı, mətbəx, 2 sanitar qovşaq, çamaşırxana otağı, qarderob otağı və geniş koridor daxildir. Bu mənzil komfortlu və keyfiyyətli yaşayış axtaran ailələr üçün ideal seçimdir.

Xəritə

Bazar analitikası

Qiymət / m²

6,250 AZN/m²

Ortadan 101.4% baha

Rayon ort: 3,104 AZN/m²

Nizami

3 104 AZN/m²

Son 6 ay: -0.1%

Rayon orta qiymət

Market

Stabil

Son 3 ay: -1.70%

Aktiv: 5295 Yeni: 2623 Tələb: Aşağı
1 250 000 AZN
C

Ceyhun

Etibarlı
Sürətli
Real foto
1 nəfər son 24 saatda baxıb
Çəkiliş sifarişi

Bu sayt düzgün işləmək üçün cookie-lərdən istifadə edir. Ətraflı