Satılır 4 otaqlı mənzil 200 m²

Bakı, Nizami · İzmir küçəsi · Bina.Az

Satış EML-127339 5
13 dəq piyada Nizami metrosu

Əmlakın təsviri

Kateqoriya

Mənzil

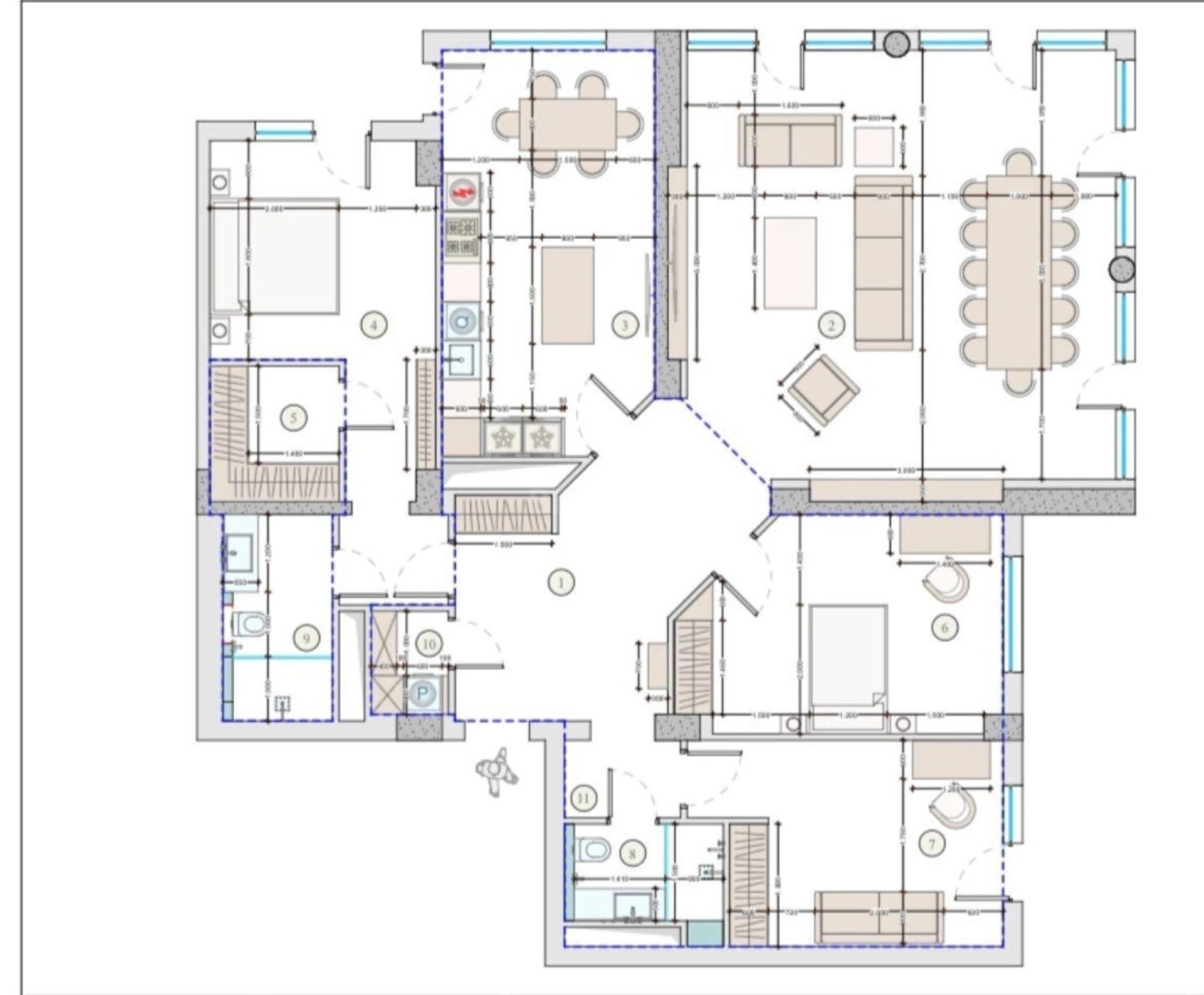
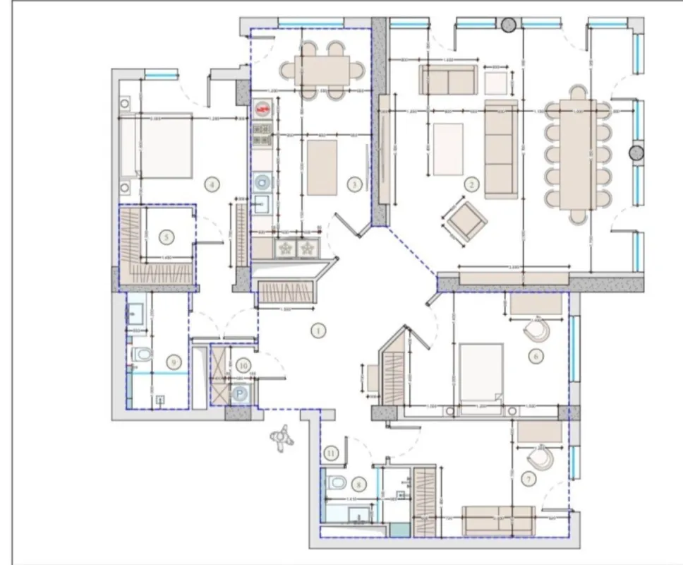
Ümumi sahə

200.00m²

Otaq sayı

4

Mərtəbə

17 / 20

Təsvir

Mənzil satış üçün təqdim olunur.

• Ünvan: İzmir Residence • Otaq sayı: 4 • Sahə: 200 m² • Mərtəbə / mərtəbə sayı: 17 / 20 • Təmir vəziyyəti: təmirli • Sənəd:

Mənzil funksional planlaşdırmaya malikdir və yaşayış üçün bütün tələblərə cavab verir. Otaqlar geniş və işıqlıdır, mətbəx rahat istifadəyə uyğundur. Təmir zamanı keyfiyyətli materiallardan istifadə edilmişdir. İstilik sistemi, su, işıq və qaz fasiləsizdir.

Bina əlverişli və perspektivli ərazidə yerləşir. Ətrafda məktəb, bağça, ticarət obyektləri və ictimai nəqliyyat mövcuddur. Şəhərin əsas istiqamətlərinə rahat çıxış imkanı var.

Mənzil həm şəxsi yaşayış, həm də investisiya baxımından əlverişlidir.

Baxış və ətraflı məlumat üçün əlaqə saxlaya bilərsiniz.

Home’L Agency Daşınmaz əmlak üzrə peşəkar xidmət

Xəritə

Bazar analitikası

Qiymət / m²

6,250 AZN/m²

Ortadan 101.4% baha

Rayon ort: 3,103 AZN/m²

Nizami

3 103 AZN/m²

Son 6 ay: -0.1%

Rayon orta qiymət

Market

Stabil

Son 3 ay: -1.70%

Aktiv: 5295 Yeni: 2623 Tələb: Aşağı
1 250 000 AZN
E

Elvin bəy

Etibarlı
Sürətli
Real foto
1 nəfər son 24 saatda baxıb
Çəkiliş sifarişi

Bu sayt düzgün işləmək üçün cookie-lərdən istifadə edir. Ətraflı