Satılır 4 otaqlı mənzil 186 m²

Bakı, 8-ci kilometr · Tbilisi prospekti · Bina.Az

Satış EML-031144 15
9 dəq piyada Memar Əcəmi metrosu

Əmlakın təsviri

Kateqoriya

Mənzil

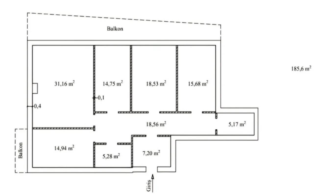
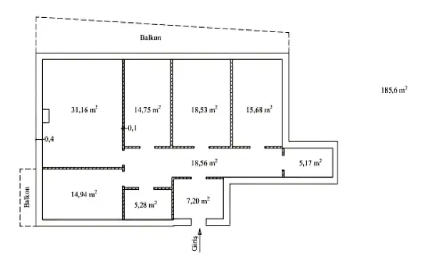
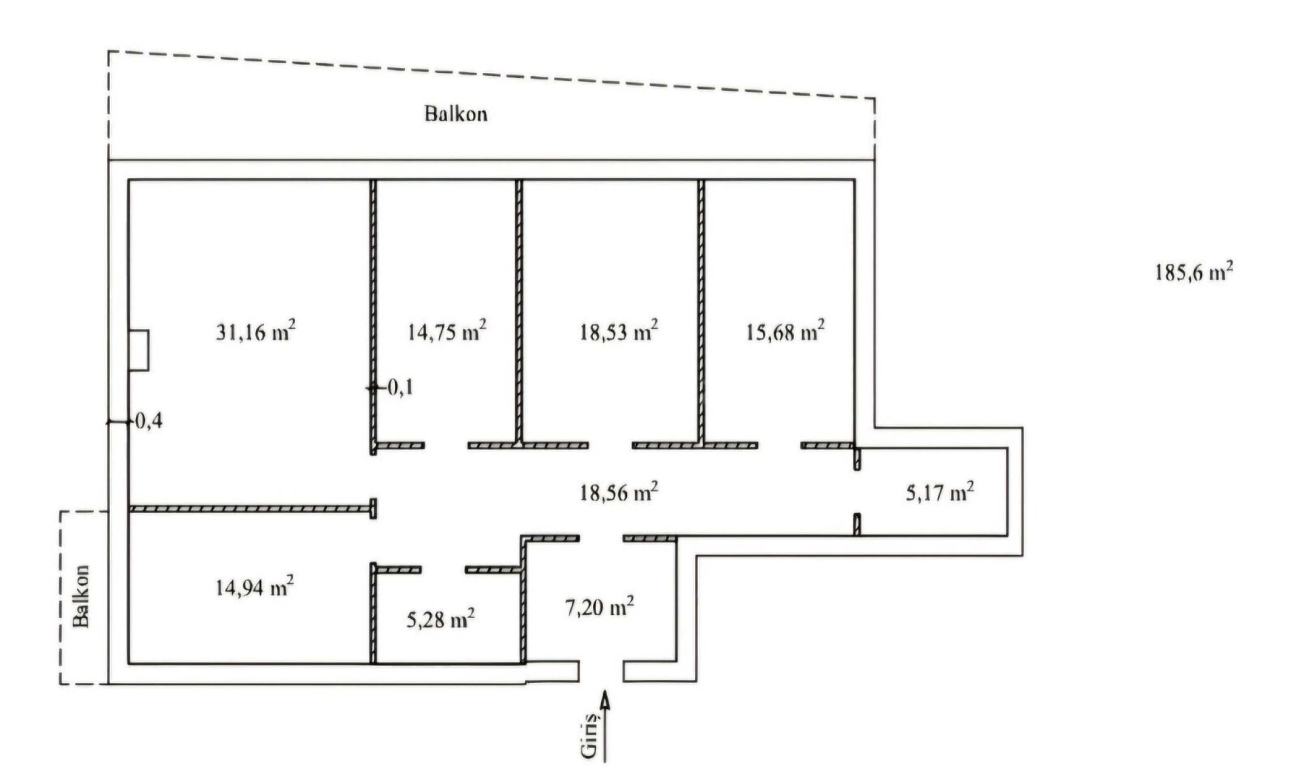
Ümumi sahə

186.00m²

Otaq sayı

4

Mərtəbə

7 / 27

Təsvir

Şəhərimizin Ən Elit Məkanlarından Olan Grand Hayat Residence Premium Yaşayış Kompleksində Ümumi Sahəsi 186 KV Olan Qanuni 4 Otaqlı Təmirsiz Mənzil Satılır.Sənədi ÇIXARIŞ.Kompleksin Ətrafında İaşə,Ticarət Obyektləri,Aptek,Mağaza Və S.Yerləşir.Kompeksdə 24 Saat Mühafizə,İstirahət Və Əyləncə Mərkəzi,Kiçik Şahmat Meydançası Və 3 Mərtəbəli Yeraltı Avtodayanacağı Mövcuddur.Qaz,İşıq,İsti\Soyuq Su Daimidir. Ətraflı Məlumat Üçün Əlaqə Saxlaya Bilərsiz. Şirkətin Xidmət Haqqı(Alıcı Tərəfdən) - 1%

Xəritə

Bazar analitikası

Qiymət / m²

2,634 AZN/m²

Ortadan 10.7% sərfəli

Rayon ort: 2,951 AZN/m²

8-ci kilometr

2 951 AZN/m²

Son 6 ay: -2.4%

Rayon orta qiymət

Market

Zeifleme

Son 3 ay: -20.50%

Aktiv: 1668 Yeni: 30 Tələb: Aşağı
490 000 AZN
E

Emil

Etibarlı
Sürətli
Real foto
2 nəfər son 24 saatda baxıb
Çəkiliş sifarişi

Bu sayt düzgün işləmək üçün cookie-lərdən istifadə edir. Ətraflı