Satılır 4 otaqlı mənzil 168 m²

Bakı, Nərimanov · Əliəşrəf Əlizadə küçəsi · Bina.Az

Satış EML-062963 6
8 dəq piyada Nariman Narimanov metrosu

Əmlakın təsviri

Kateqoriya

Mənzil

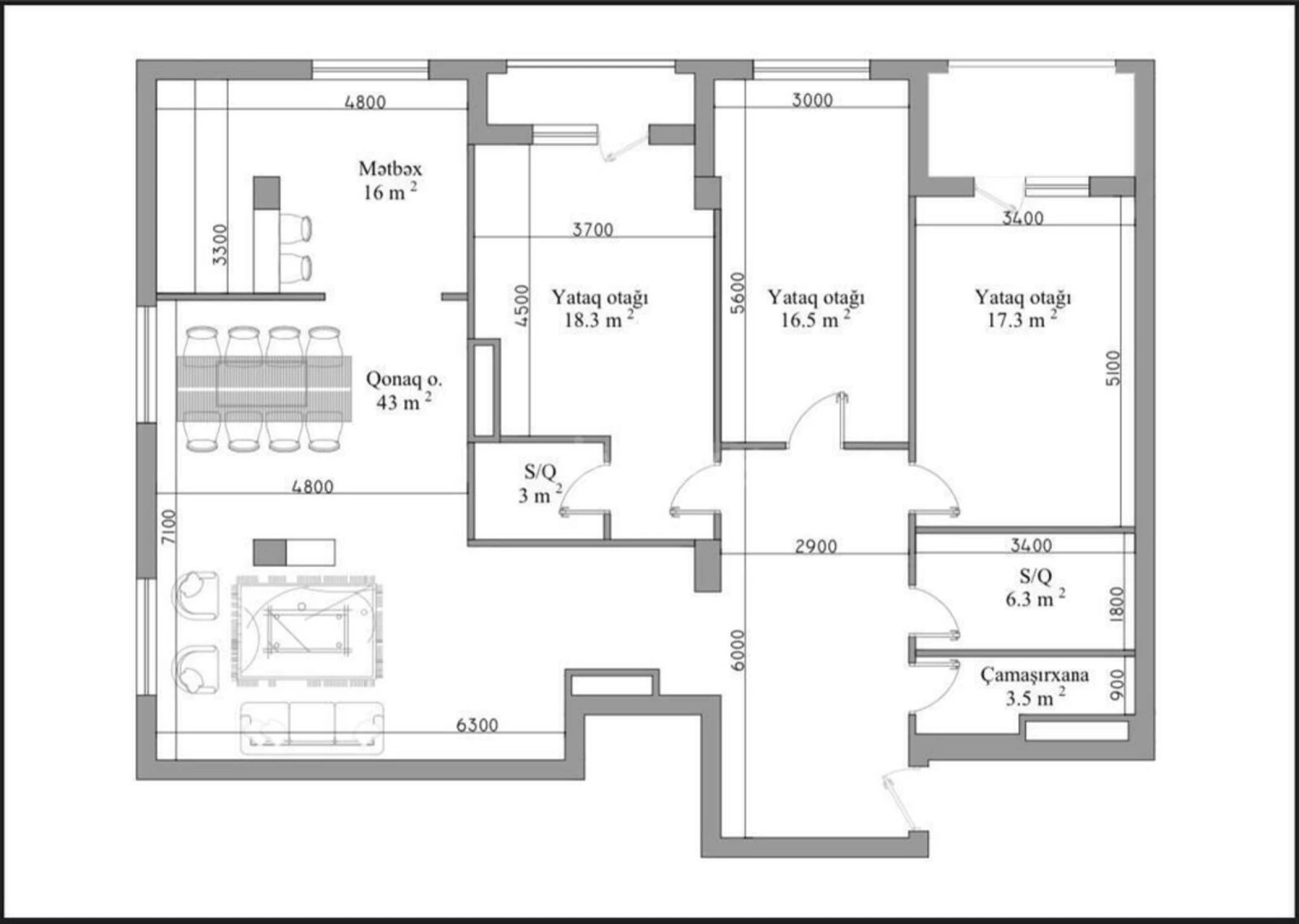
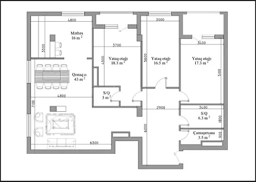
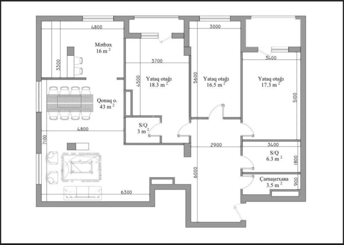
Ümumi sahə

168.00m²

Otaq sayı

4

Mərtəbə

11 / 14

Təsvir

Kupçalı ipotekaya yararlı. Heydər Əliyev Mərkəzi və Çapayevdə yeni açılan park yaxınlığında premium yaşayış kompleksi olan Whitestone Rezidens də ideal təklif. Möhtəşəm proyektə sahib təmirsiz 4 otaq. Binanın yeraltı parkingi, Sürətli liftləri, Futbol meydançası, Uşaq karuseli, Supermarket və sair iaşə obyektləri mövcudur. Bu kompleksdə mənzil sahibi olmaq üçün əlaqə saxlaya bilərsiz. Xidmət haqqı alıcı tərəfdən 1% təşkil edir..

Xəritə

Bazar analitikası

Qiymət / m²

2,708 AZN/m²

Ortadan 26.4% sərfəli

Rayon ort: 3,680 AZN/m²

Nərimanov

3 680 AZN/m²

Son 6 ay: -1.3%

Rayon orta qiymət

Market

Artim

Son 3 ay: +23.70%

Aktiv: 7921 Yeni: 4017 Tələb: Aşağı
455 000 AZN
M

Miremin

Etibarlı
Sürətli
Real foto
1 nəfər son 24 saatda baxıb
Çəkiliş sifarişi

Bu sayt düzgün işləmək üçün cookie-lərdən istifadə edir. Ətraflı