Satılır 4 otaqlı mənzil 152.6 m²

Bakı · Mərkəzi Park küçəsi · Bina.Az

Satış EML-083134 6

Əmlakın təsviri

Kateqoriya

Mənzil

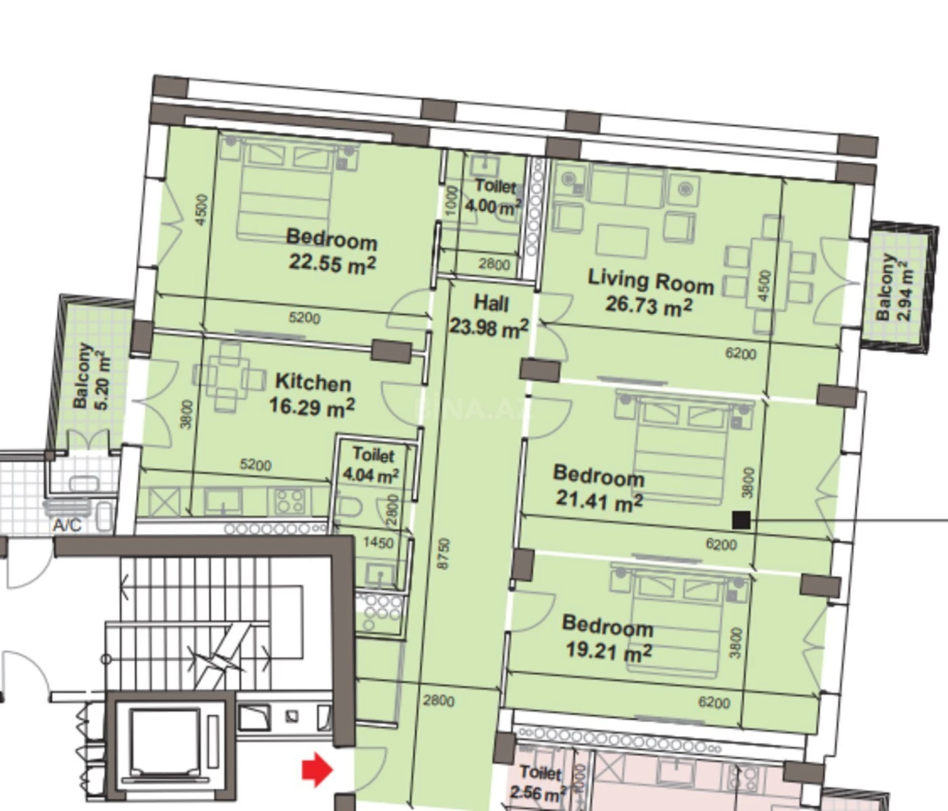
Ümumi sahə

152.60m²

Otaq sayı

4

Mərtəbə

4 / 7

Təsvir

Xətai rayonu, Bakı Ağ Şəhəri, premium layihələrin birində 4 otaq 152.6 kv m sahədən ibarət mənzil satılır. Bina təhvil verilib və yaşayış mövcuddur! Mənzilin geniş qonaq otağı və işıqlı otaqları var. Kompleksin geniş həyəti, parking ərazisi var. Lokasiya olaraq ideal yerdə yerləşir, yaxında yeni "City Park Mall", uşaq bağçası, məktəb, restoran, supermarket və digər iaşə obyektləri mövcuddur! Əlavə məlumat almaq üçün zəng etməyiniz xahiş olunur!

Хатаинский район, Baku White City, в одном из премиальных ЖК продаётся 4-х комнатная квартира с общей площадью 152.6 кв м. В квартире просторные и светлые комнаты, гостевая большая. Комплекс имеет большой и ухоженный двор, паркинг. ЖК находится в идеальной локации, рядом есть новый ТЦ "City Park Mall", детский сад, школа, супермаркет, рестораны и пр. Для детальной информации позвоните пожалуйста!

Xəritə

338 378 EUR
626 000 AZN
W

Welhome

Etibarlı
Sürətli
Real foto
2 nəfər son 24 saatda baxıb
Çəkiliş sifarişi

Bu sayt düzgün işləmək üçün cookie-lərdən istifadə edir. Ətraflı