Satılır 3 otaqlı yeni tikili 144 m²

Bakı, Nərimanov · Baki Bagllari · YeniEmlak.AZ

Satış EML-015278 73
10 dəq piyada Ulduz metrosu

Əmlakın təsviri

Kateqoriya

Yeni tikili

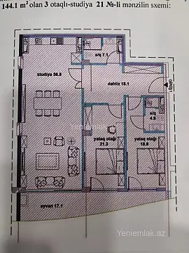
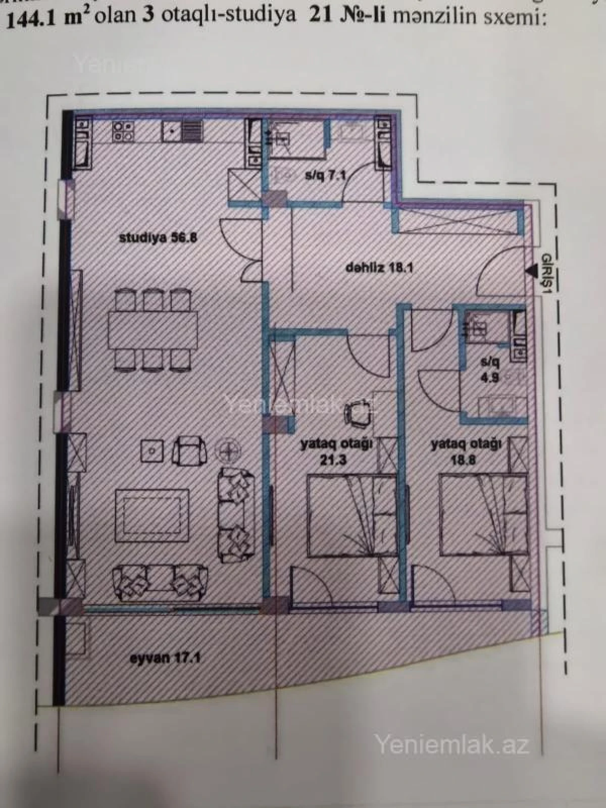
Ümumi sahə

144.00m²

Otaq sayı

3

Mərtəbə

7 / 17

Təmiri

Təmirli

Sənəd tipi

Kupça

Mərkəzi istilik

Var

Kombi

Var

Kondisioner

Var

Kabel TV

Var

Telefon

Var

Lift

Var

Eyvan

Var

Təsvir

Ekskluziv !!! Premium Layiheli BAKI BAĞLARI Yaşayış komleksidə yerləşir.Mənzilin Heydər Əliyev Mərkəzinə Gözəl Mənzərəsi var.Yaxın zamanda Kompleks tehvil veriləcək Ofis haqqı 1%

Xəritə

Bazar analitikası

Qiymət / m²

5,174 AZN/m²

Ortadan 41.2% baha

Rayon ort: 3,664 AZN/m²

Nərimanov

3 664 AZN/m²

Son 6 ay: -1.7%

Rayon orta qiymət

Market

Artim

Son 3 ay: +15.20%

Aktiv: 8174 Yeni: 4106 Tələb: Aşağı
745 000 AZN
Təmirli Kupçalı
K

Kamran M

Etibarlı
Sürətli
Real foto
3 nəfər son 24 saatda baxıb
Çəkiliş sifarişi

Bu sayt düzgün işləmək üçün cookie-lərdən istifadə edir. Ətraflı