Satılır 3 otaqlı yeni tikili 135 m²

Bakı, Nəsimi · Sahib Zeynalov küçəsi · YeniEmlak.AZ

Satış EML-113407 1
10 dəq piyada Nariman Narimanov metrosu

Əmlakın təsviri

Kateqoriya

Yeni tikili

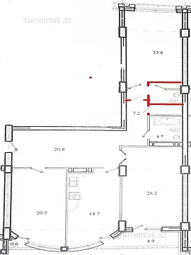
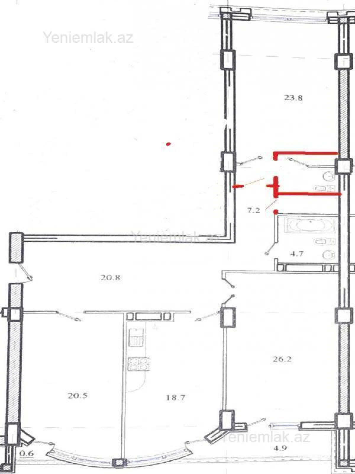
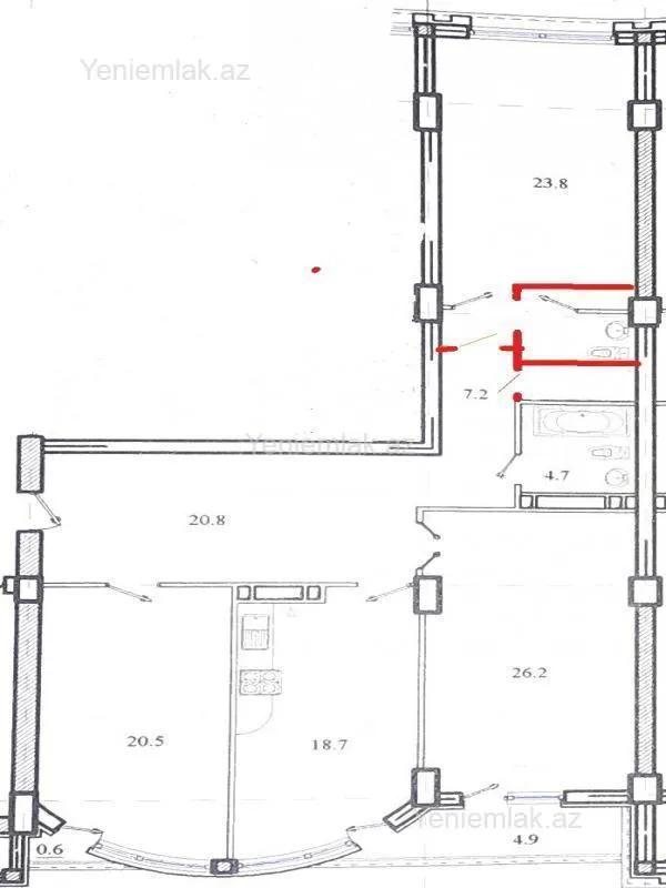
Ümumi sahə

135.00m²

Otaq sayı

3

Mərtəbə

14 / 16

Təmiri

Təmirli

Sənəd tipi

Kupça

Əşyalı

Bəli

Kombi

Var

Kondisioner

Var

Kabel TV

Var

Telefon

Var

Lift

Var

Eyvan

Var

Təsvir

Nəsimi rayonu , Sahib Zeynalov küçəsində yerləşən bu 3 otaqlı mənzil satış üçün əla fürsətdir. Mənzil 16 mərtəbəli binanın 14-cü mərtəbəsində, binanın ən optimal – orta hissəsində yerləşir və hər iki istiqamətdən hava axını (yelçəkən) ilə seçilir. . Mənzilin əsas üstünlüklərindən biri onun panoramik mənzərəsidir: qonaq otağı, mətbəx və yataq otaqlarından biri dənizə baxır, digər yataq otağı isə metro istiqamətində yerləşir. 2 geniş eyvanı və 3 sanitariya qovşağı ilə böyük ailələr üçün də tam komfort təmin edir. . Ev yüksək keyfiyyətlə təmir olunub – işıqlı, geniş və funksional planlaşdırmaya malikdir. Kombi istilik sistemi ilə yanaşı, xoll, mətbəx, dəhliz və sanitar qovşaqlarda döşəməaltı istilik sistemi qurulub ki, bu da həm rahatlıq, həm də enerji qənaəti baxımından üstünlük yaradır. Əlavə olaraq ehtiyat radiator xətləri də nəzərdə tutulub. . Elektrik sistemi müasir standartlara uyğun qurulub: yüksək keyfiyyətli naqillər, kifayət qədər rozetkalar , torpaqlama xətti və hər avadanlıq üçün ayrıca qoruyucu sistem mövcuddur. İşıqlandırma optimal şəkildə zonalara bölünüb və ayrıca idarə olunur. . Binada sürətli liftlər, 24 saat mühafizə xidməti və kodlaşdırılmış giriş sistemi mövcuddur. Qaz, su və işıq daimidir. . Sənəd müqavilədir. Bina dövlət reyestrində qeydiyyata alınıb və yaxın zamanda çıxarışların verilməsi gözlənilir. Bu mənzil həm yaşamaq, həm də gəlirli investisiya üçün ideal seçimdir. Ofis haqqı alıcı tərəfdən 1% təşkil edir. Sahib Zeynalov küçəsi

Xəritə

Bazar analitikası

Qiymət / m²

3,852 AZN/m²

Ortadan 10.3% baha

Rayon ort: 3,492 AZN/m²

Nəsimi

3 492 AZN/m²

Son 6 ay: -1%

Rayon orta qiymət

Market

Zeifleme

Son 3 ay: -10.50%

Aktiv: 6040 Yeni: 3425 Tələb: Aşağı
520 000 AZN
Təmirli Kupçalı Əşyalı
N

Nigar x

Etibarlı
Sürətli
Real foto
1 nəfər son 24 saatda baxıb
Çəkiliş sifarişi

Bu sayt düzgün işləmək üçün cookie-lərdən istifadə edir. Ətraflı