Satılır 3 otaqlı yeni tikili 113 m²

Bakı, Nərimanov · Təbriz küc · YeniEmlak.AZ

Satış EML-154430 1
10 dəq piyada Ulduz metrosu

Əmlakın təsviri

Kateqoriya

Yeni tikili

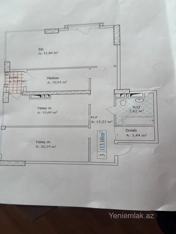
Ümumi sahə

113.00m²

Otaq sayı

3

Mərtəbə

16 / 17

Sənəd tipi

Kupça

Kombi

Var

Kabel TV

Var

Telefon

Var

Lift

Var

Təsvir

Nərimanov rayonu Firdovsi Məmmədov kücəsi.Triumf Palas Kompleksində yeni tikili binanın18--16 ci mərtəbəsində ümumi sahəsi 113 kv.olan 3 otaqli,pod moyak mənzil satilir . Mənzilin qazı, suyu , işığı daimidir. Binada 2 sürətli lift,24 saat mühafizə xidməti, yeraltı-yerüstü dayanacaq və s.var.Binanın yaxınlığında super-marketlər,avtobus dayanacaqları və s. yerləşi.Əlavə sual varsa zəng edin.

Xəritə

Bazar analitikası

Qiymət / m²

2,832 AZN/m²

Ortadan 22.6% sərfəli

Rayon ort: 3,657 AZN/m²

Nərimanov

3 657 AZN/m²

Son 6 ay: -1.9%

Rayon orta qiymət

Market

Artim

Son 3 ay: +4.00%

Aktiv: 8962 Yeni: 2770 Tələb: Aşağı
320 000 AZN
Kupçalı
C

Calal

Etibarlı
Sürətli
Real foto
1 nəfər son 24 saatda baxıb
Çəkiliş sifarişi

Bu sayt düzgün işləmək üçün cookie-lərdən istifadə edir. Ətraflı