Satılır 3 otaqlı mənzil 96.5 m²

Bakı · Həsən bəy Zərdabi pr.3166 · Bina.Az

Satış EML-141419 2
9 dəq piyada Memar Əcəmi metrosu

Əmlakın təsviri

Kateqoriya

Mənzil

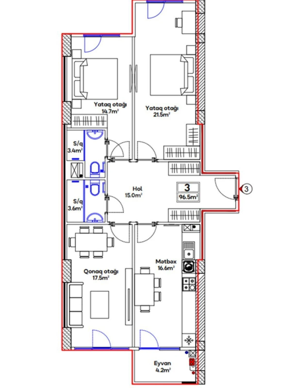
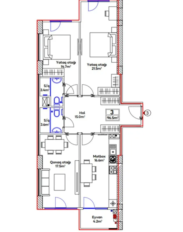
Ümumi sahə

96.50m²

Otaq sayı

3

Mərtəbə

18 / 20

Təmiri

Təmirli

Təsvir

Melissa Park layihəsi şəhərin əsas infrastruktur qovşaqlarında və 20 yanvar m/s yaxınlığında, H. Zərdabi prospekti 3166-cı məhəllədə yerləşir. Melissa Park layihəsinin G binasında sahəsi 96.5 kv.m təşkil edən TAM TƏMİRLİ və TAM ƏŞYALI 3 otaqlı mənzil satılır. Həm nağd, həm də ipoteka ilə əldə edə bilərsiniz. Nağd satış şərtləri: - 1 kv.m nağd qiyməti 3.135 AZN - Nağd satış zamanı mənzilin ümumi dəyəri 302.528 AZN

İpoteka ilə satış şərtləri: - İlkin ödəniş 47.951 AZN - Aylıq ödəniş 3 689 AZN - Müddət 10 il - İllik 12%

Üstünlüklərimiz: - 3.20 m tavan hündürlüyü - Sərfəli satış şərtləri - Binada daimi su, işıq, qaz və kombi istilik sistemi mövcuddur - Yük və sərnişin lifti - 5 mərtəbə yeraltı parking xidməti - Geniş qapalı park - 7/24 mühafizə xidməti

Xəritə

302 528 AZN
Təmirli
M

Melissa Group

Etibarlı
Sürətli
Real foto
2 nəfər son 24 saatda baxıb
Çəkiliş sifarişi

Bu sayt düzgün işləmək üçün cookie-lərdən istifadə edir. Ətraflı