Satılır 3 otaqlı mənzil 92 m²

Bakı, Sea Breeze · Park Residence., 3. · Bina.Az

Satış EML-083567 8

Əmlakın təsviri

Kateqoriya

Mənzil

Ümumi sahə

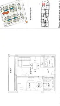
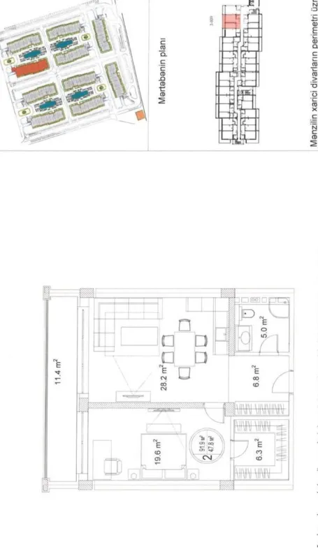
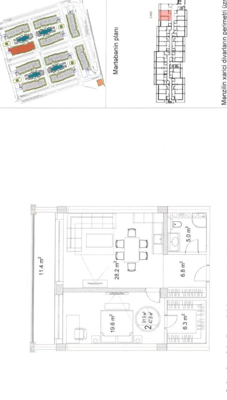
92.00m²

Otaq sayı

3

Mərtəbə

8 / 9

Təsvir

Sea Breeze – Park Residence 3-də 2 otaqlı ideal ev!

Lüks və komfortun mükəmməl vəhdəti! Sea Breeze-in Park Residence 3 kompleksində geniş və işıqlı 2 otaqlı ev satışdadır.

✨ Prestijli məkan – dəniz kənarında elit yaşayış kompleksi. ✨ Fərqli memarlıq dizaynı – müasir üslub və yüksək keyfiyyətli materiallar. ✨ İşıqlı və geniş otaqlar – rahat və funksional planlaşdırma. ✨ Təhlükəsiz və komfortlu həyat – 24/7 mühafizə, inkişaf etmiş infrastruktur.

Park Residence 3 – Sea Breeze-in premium yaşayış layihələrindən biri olub, yüksək keyfiyyətli tikinti standartları və unikal memarlıq üslubu ilə seçilir. Burada spa, fitnes mərkəzi, restoranlar, hovuzlar və yaşıl istirahət zonaları sakinlərin rahatlığı üçün nəzərdə tutulub.

📞 Bu prestijli evə sahib olmaq üçün elə indi bizimlə əlaqə saxlayın!

Xəritə

Bazar analitikası

Qiymət / m²

2,717 AZN/m²

Ortadan 52.1% sərfəli

Rayon ort: 5,671 AZN/m²

Sea Breeze

5 671 AZN/m²

Son 6 ay: -0.3%

Rayon orta qiymət

Market

Zeifleme

Son 3 ay: -14.10%

Aktiv: 743 Yeni: 324 Tələb: Aşağı
135 135 EUR
250 000 AZN
Т

Турал Гейдарзаде

Etibarlı
Sürətli
Real foto
1 nəfər son 24 saatda baxıb
Çəkiliş sifarişi

Bu sayt düzgün işləmək üçün cookie-lərdən istifadə edir. Ətraflı