Satılır 3 otaqlı mənzil 117 m²

Bakı, Sea Breeze · Sea Breeze qəs. · Bina.Az

Satış EML-147184 1

Əmlakın təsviri

Kateqoriya

Mənzil

Ümumi sahə

117.00m²

Otaq sayı

3

Mərtəbə

1 / 7

Təsvir

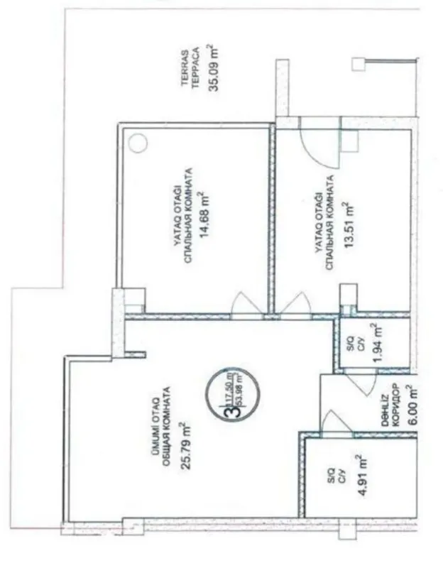
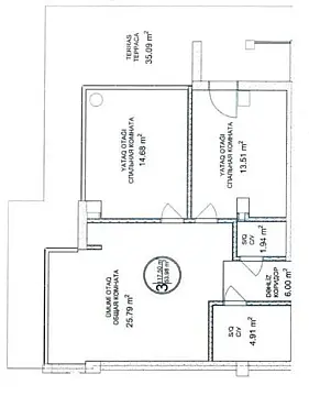
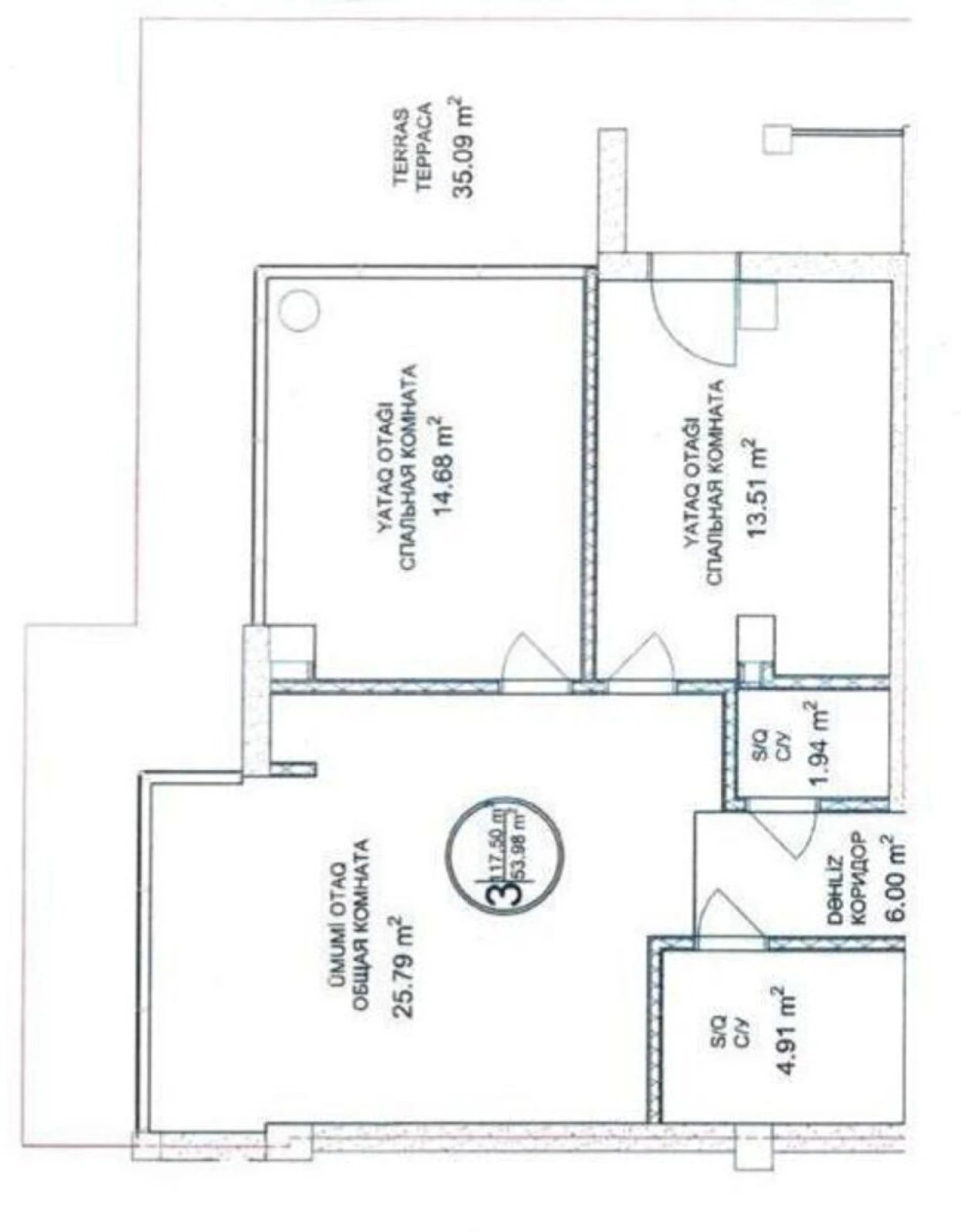
Dəyərli müştərilərimiz. Seabreeze Polo Residence-də yerləşən ümumi sahəsi 117 m² , 3 otaqlı mənzil satışa təqdim olunur. Mənzil 7 mərtəbəli binanın 1-ci mərtəbəsində yerləşir. Hündürlüyü yüksək olduğuna görə iki hissəyə bölüb antrisol etmə imkanı var.

Mənzilin özünə məxsus əlavə olaraq 35 kv terası və yaşıl zonası var və bağ kimi istifadə etmək mümkündür. Qiymət : 355.000 Azn

Biz Sea Breeze-də daha sərfəli qiymətlər təklif edirik və ikinci əl (resale) mənzillərin və villaların satışını həyata keçiririk

⚠️ Sea Breeze-də bu qiymətə belə variantlar bazarda çox qalmır ⚠️ Həm kirayə gəliri, həm kapital artımı üçün ideal seçimdir Ətraflı məlumat üçün əlaqə saxlaya bilərsiniz.

Xəritə

Bazar analitikası

Qiymət / m²

3,034 AZN/m²

Ortadan 45.6% sərfəli

Rayon ort: 5,578 AZN/m²

Sea Breeze

5 578 AZN/m²

Son 6 ay: -1.9%

Rayon orta qiymət

Market

Zeifleme

Son 3 ay: -12.10%

Aktiv: 875 Yeni: 431 Tələb: Aşağı
355 000 AZN
Ş

Şövqi Quliyev

Etibarlı
Sürətli
Real foto
1 nəfər son 24 saatda baxıb
Çəkiliş sifarişi

Bu sayt düzgün işləmək üçün cookie-lərdən istifadə edir. Ətraflı