Satılır 3 otaqlı mənzil 112.4 m²

Bakı · Ağ Şəhər qəs. · Bina.Az

Satış EML-141163 1

Əmlakın təsviri

Kateqoriya

Mənzil

Ümumi sahə

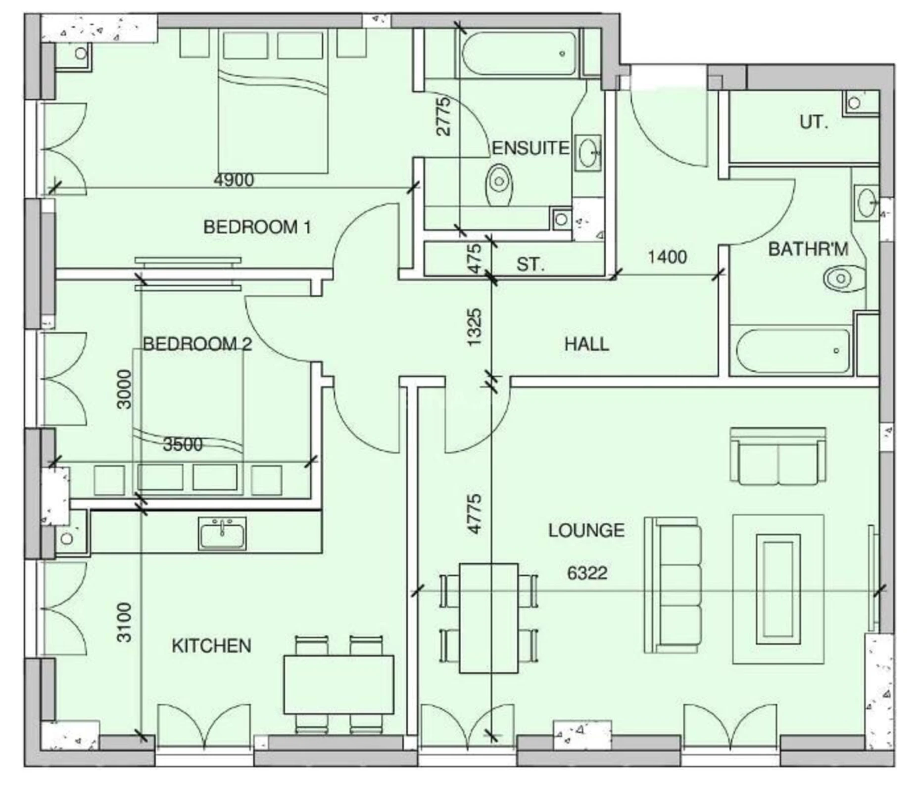
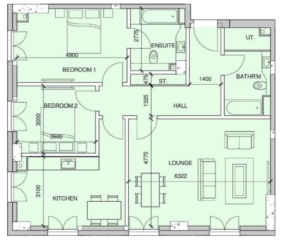
112.40m²

Otaq sayı

3

Mərtəbə

3 / 8

Təsvir

- Satış: Yeni tikili - Ünvan: Ağ Şəhər Kompleksi - Otaq sayı: 3 - Sahəsi: 112.4 m2 - Mərtəbə: 8/3 - Sənədi: Çıxarış - İpotekaya yararlıdır - Təsviri: Tavanın hündürlüyü 4.50 metr. Dəniz mənzərəlidir. Şirkət haqqı 1% (alıcıdan).

------------------------

- Продажа: Новостройка - Адрес: Комплекс Белый Город - Кол-во ком: 3 - Площадь: 112.4 м2 - Этаж: 8/3 - Документ: Купчая - Подходит под ипотеку - Описание: Высота потолка 4.50 м. Квартира с видом на море. Услуги фирмы 1% (от покупателя).

Xəritə

618 000 AZN
T

Tünzalə xanım

Etibarlı
Sürətli
Real foto
1 nəfər son 24 saatda baxıb
Çəkiliş sifarişi

Bu sayt düzgün işləmək üçün cookie-lərdən istifadə edir. Ətraflı