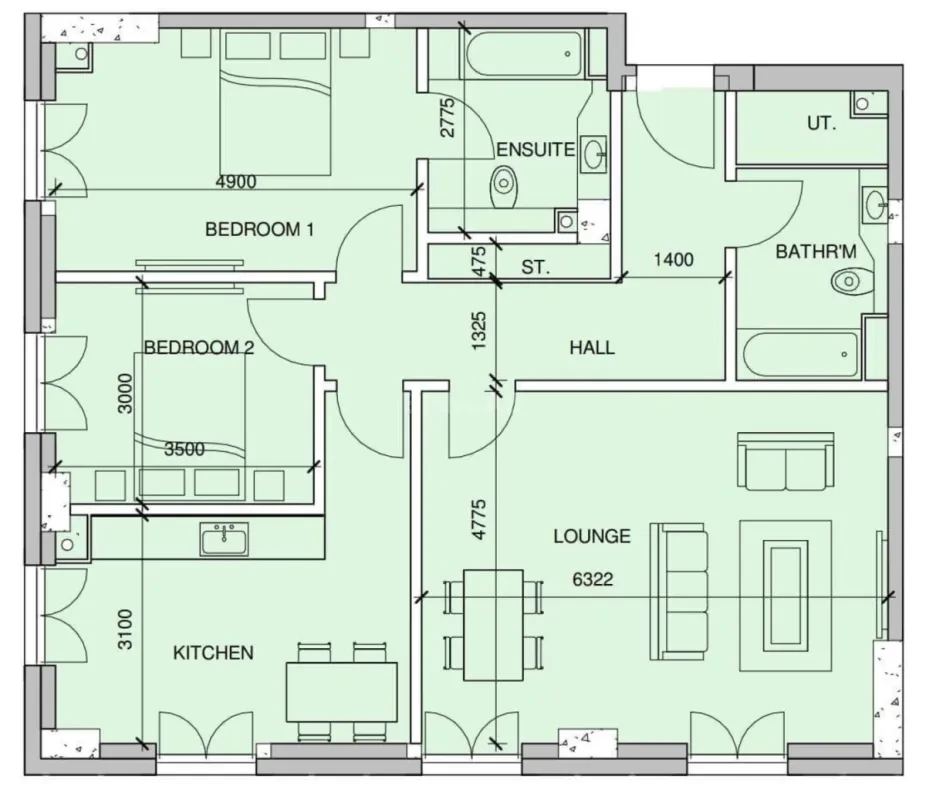
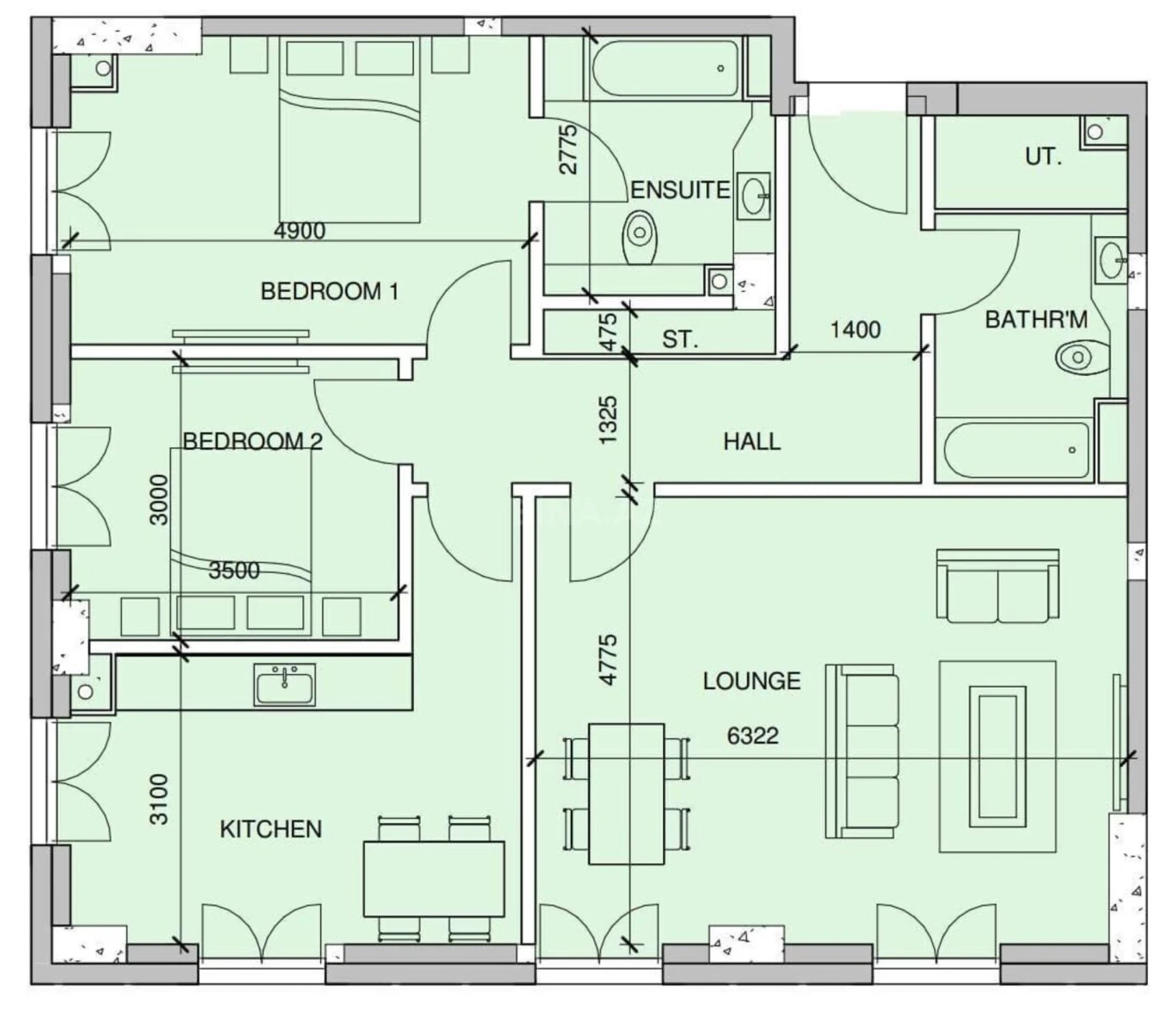
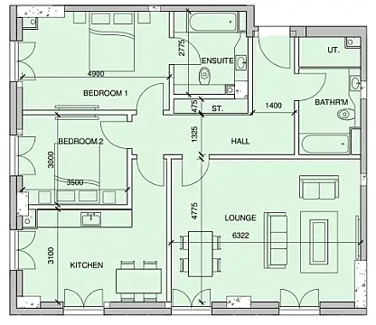
Satılır 3 otaqlı mənzil 112.4 m²

Bakı · Mərkəzi Bulvar küç. · Bina.Az

Satış EML-173383 1

Əmlakın təsviri

Kateqoriya

Mənzil

Ümumi sahə

112.40m²

Otaq sayı

3

Mərtəbə

3 / 8

Təsvir

İPOTEKAYA YARARLI !!!!!!!! ÇIXARIŞLI (KUPÇALI)

DƏNİZ PANORAMALI LÜKS MƏNZİL! 🌟 📍 Ağ Şəhər, Knightbridge Residence

Şəhərin ən prestijli yaşayış komplekslərindən biri olan Knightbridge Residence-də 3 otaqlı, 112.4 m² sahəsi olan təmirsiz mənzil satılır.

🏢 Kompleksin üstünlükləri: 7/24 mühafizə və canlı kamera sistemi 📹 Sakit və təhlükəsiz həyət

🏠 Ağ Şəhərdə başqa mənzil seçimlərimiz də mövcuddur.

💰 Ofisin xidmət haqqı: Alıcılara cəmi 1% təşkil edir.

Əlaqə üçün zəng edin və ideal mənzilinizi seçin! 📞

Xəritə

618 200 AZN
R

Rauf

Etibarlı
Sürətli
Real foto
1 nəfər son 24 saatda baxıb
Çəkiliş sifarişi

Bu sayt düzgün işləmək üçün cookie-lərdən istifadə edir. Ətraflı