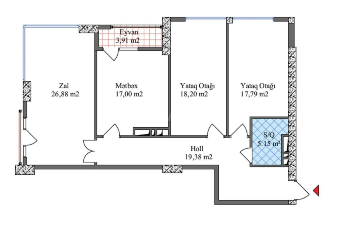
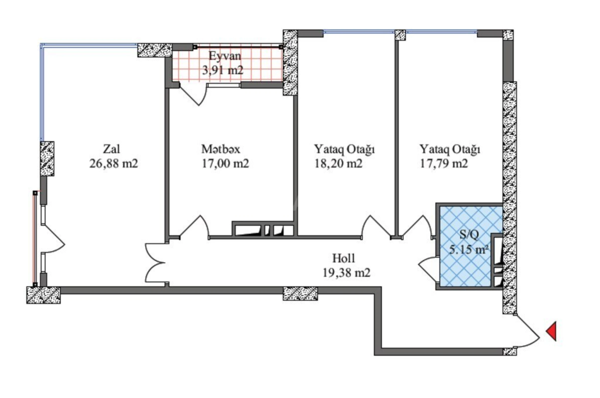
Satılır 3 otaqlı mənzil 108.87 m²

Bakı, Yasamal · Təbriz küç 16 · Bina.Az

Satış EML-026292 9
1 dəq piyada Gənclik metrosu

Əmlakın təsviri

Kateqoriya

Mənzil

Ümumi sahə

108.87m²

Otaq sayı

3

Mərtəbə

13 / 16

Təsvir

Bina təhvil verilib.Bütün kommunal xidmətlərlə təmin olunmuşdur.

Xəritə

Bazar analitikası

Qiymət / m²

3,200 AZN/m²

Ortadan 8.6% baha

Rayon ort: 2,948 AZN/m²

Yasamal

2 948 AZN/m²

Son 6 ay: -2.7%

Rayon orta qiymət

Market

Zeifleme

Son 3 ay: -10.20%

Aktiv: 6281 Yeni: 3373 Tələb: Aşağı
188 316 EUR
348 384 AZN
T

Triumf Palace

Etibarlı
Sürətli
Real foto
2 nəfər son 24 saatda baxıb
Çəkiliş sifarişi

Bu sayt düzgün işləmək üçün cookie-lərdən istifadə edir. Ətraflı