Satılır 2 otaqlı mənzil 85.7 m²

Sumqayıt · Sumpark yaşayış kompleksi · Bina.Az

Satış EML-027018 13

Əmlakın təsviri

Kateqoriya

Mənzil

Ümumi sahə

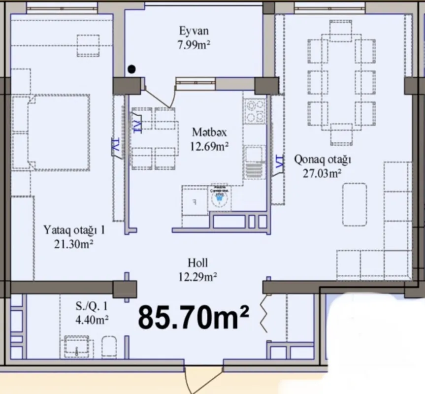
85.70m²

Otaq sayı

2

Mərtəbə

6 / 9

Təsvir

Sumqayıt şəhəri, 10-cu mikrorayonda yerləşən, Huner Group tərəfindən inşa edilmiş Sumpark yaşayış kompleksində premium seqmentə aid 2 otaqlı, 85.7 m² mənzil sahibindən satılır.

Bina yüksək tikinti standartları ilə seçilir. Almaniya istehsalı olan Schindler liftləri quraşdırılıb.

Kompleks maşınsız həyət konsepti ilə layihələndirilib – uşaqlar və ailələr üçün təhlükəsiz və rahat mühit təmin olunub.

Mənzil təmirsizdir (podmayak), geniş və funksional planlanmaya malikdir. Şəxsi zövqə uyğun təmir üçün ideal variantdır.

• Sahə: 85.7 m² • Otaq sayı: 2 • Vəziyyət: Təmirsiz • Premium bina (Huner Group) • Schindler lift sistemi • Maşınsız həyət • Qiymət: 128 550 AZN (1 m² – 1500 AZN) • Real alıcı ilə əsaslı danışıq mümkündür

Əlaqə üçün zəng edə bilərsiniz.

Xəritə

128 550 AZN
E

Elan sahibi

Etibarlı
Sürətli
Real foto
1 nəfər son 24 saatda baxıb
Çəkiliş sifarişi

Bu sayt düzgün işləmək üçün cookie-lərdən istifadə edir. Ətraflı