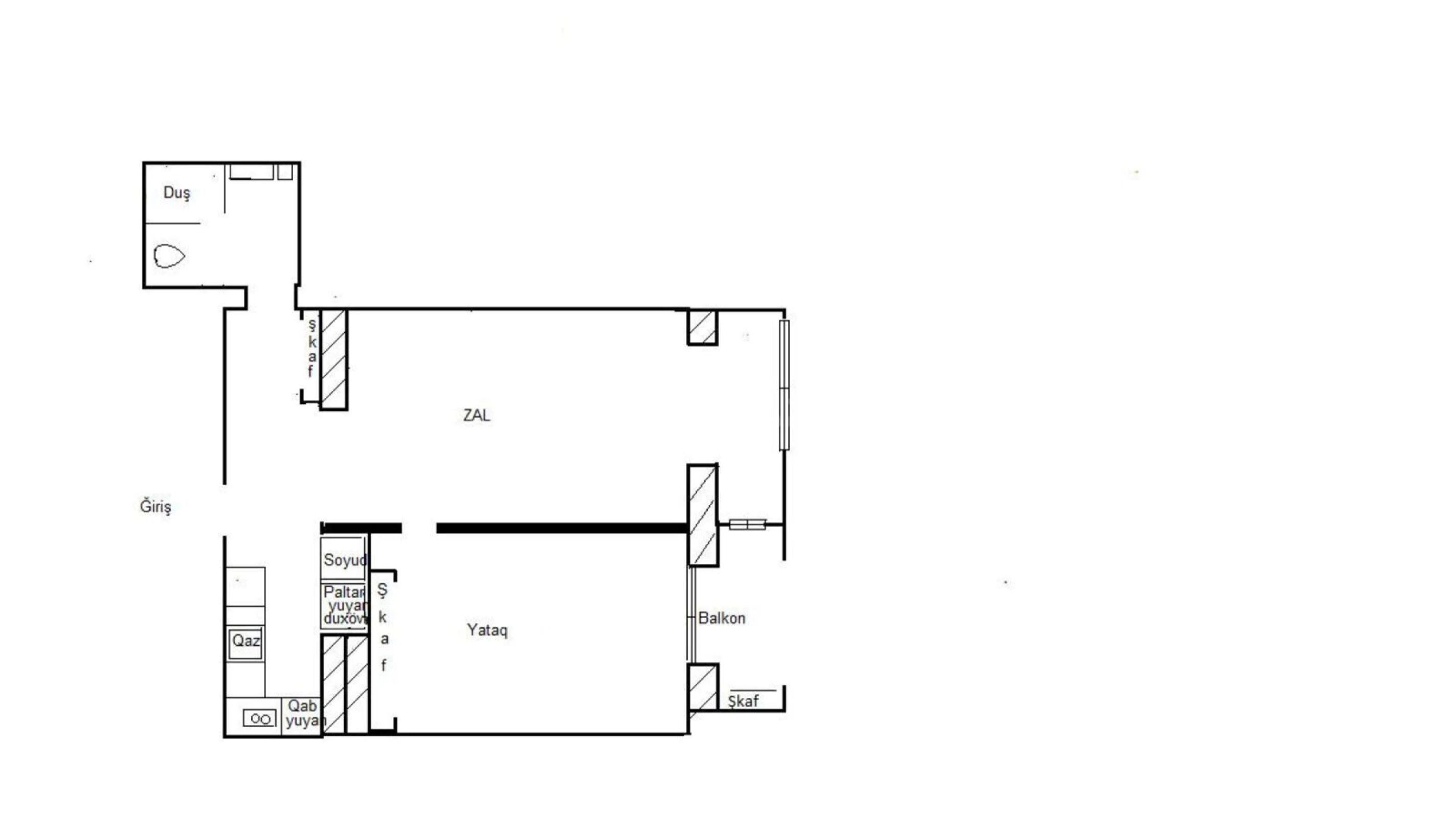
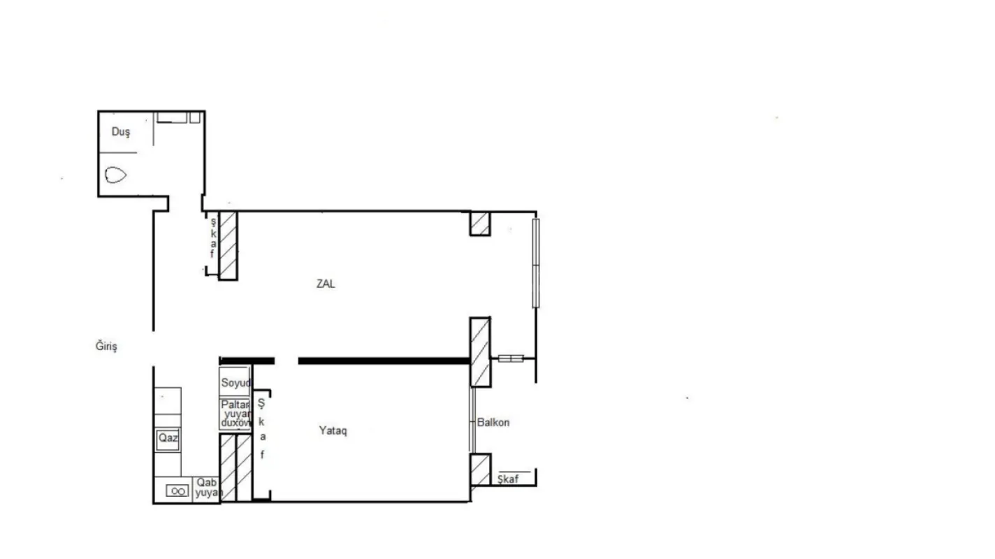
Satılır 2 otaqlı mənzil 69 m²

Bakı, Xətai · Nəcəfqulu Rəfiyev küç · Bina.Az

Satış EML-041407 9
15 dəq piyada Nariman Narimanov metrosu

Əmlakın təsviri

Kateqoriya

Mənzil

Ümumi sahə

69.00m²

Otaq sayı

2

Mərtəbə

16 / 20

Təmiri

Təmirli

Təsvir

🏢 Ünvan: Xətai m.,FHNnin yanında. 20 mərtəbəli binanın 16-cı mərtəbəsi 📏 Sahə: 69 m² 🚪 Otaq sayı: 2 otaq 💰 Qiymət: 308 000 azn

✨ Üstünlüklər: • Tam yaşayışa hazır • İşıqlı və super təmir • geniş həyət və gözəl yerləşmə

Xəritə

Bazar analitikası

Qiymət / m²

4,464 AZN/m²

Ortadan 51.2% baha

Rayon ort: 2,951 AZN/m²

Xətai

2 951 AZN/m²

Son 6 ay: -4.4%

Rayon orta qiymət

Market

Zeifleme

Son 3 ay: -8.40%

Aktiv: 9575 Yeni: 4607 Tələb: Aşağı
308 000 AZN
Təmirli
T

Tamerlan

Etibarlı
Sürətli
Real foto
1 nəfər son 24 saatda baxıb
Çəkiliş sifarişi

Bu sayt düzgün işləmək üçün cookie-lərdən istifadə edir. Ətraflı