Satılır 2 otaqlı mənzil 68.3 m²

Bakı, Xətai · N.Rəfiyev küçəsi 57 · Bina.Az

Satış EML-113949 10
16 dəq piyada Nariman Narimanov metrosu

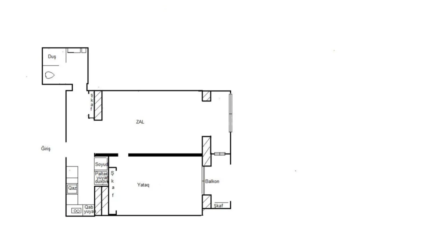
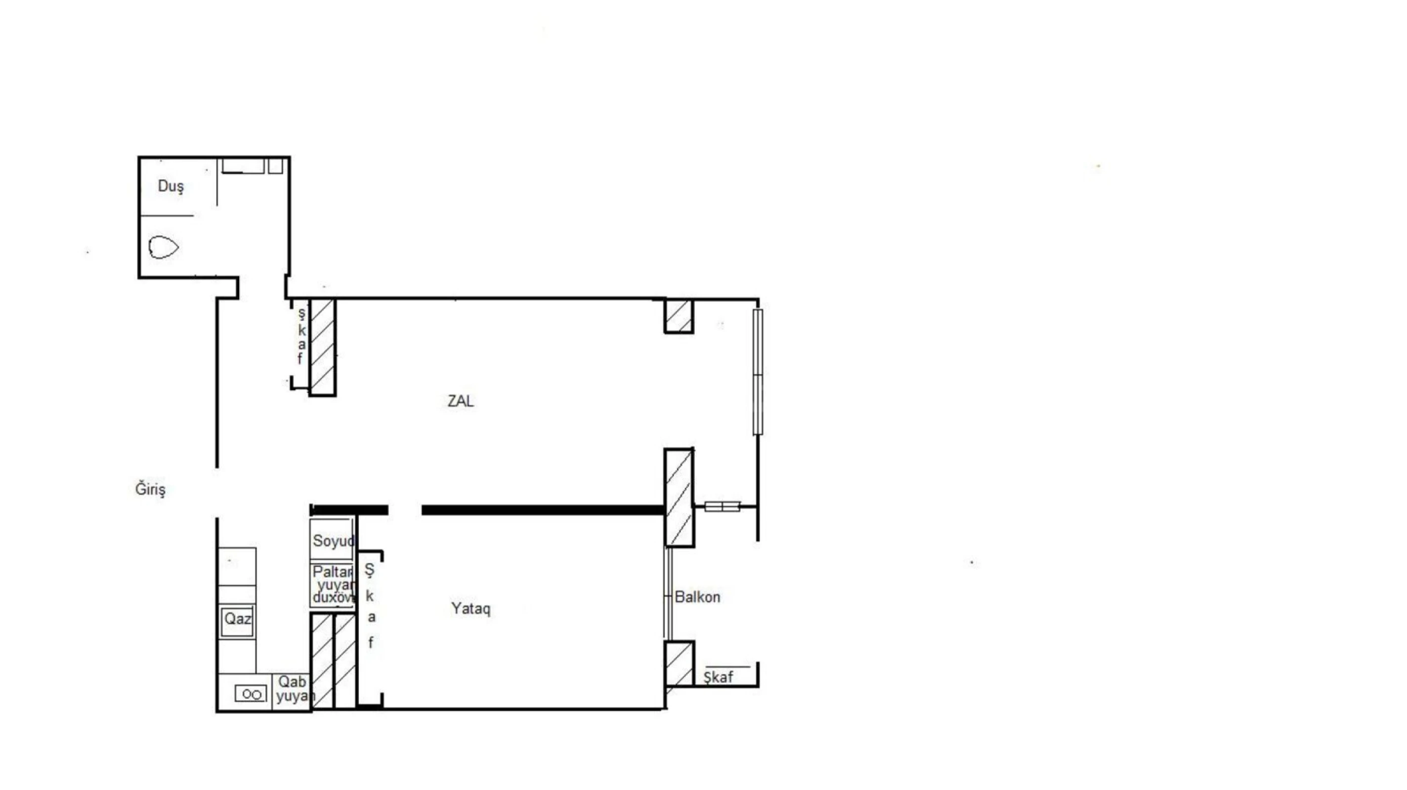
Əmlakın təsviri

Kateqoriya

Mənzil

Ümumi sahə

68.30m²

Otaq sayı

2

Mərtəbə

16 / 20

Təmiri

Təmirli

Təsvir

Xətai r.Xətai m/s.Nəcəfqulu Rəfiyev küçəsi.FHN-nin və Bravo Marketin yaxınlığı. Şəhərin Elit Yeni Tikililərindən olan "Baku City Residence Xətai".20 mərtəbəli Qaz-ı olan Yeni tikili binanın 16-cı mərtəbəsində 1 otaqlıdan 2 otaqlıya düzəlmiş, ümumi sahəsi 68.3 m² olan əla təmirli mənzil satılır.Mənzildə təmirdən sonra yaşayış olmamışdır.Mənzilin qazı, suyu,işığı daimidir və istilik sistemi kombidir.Binanın 2 ədəd sürətli lifti, 24 saat mühafizə xidməti, qapalı həyəti,yeraltı dayanacağı və s.var.Binanın yaxınlığında orta məktəb,uşaq bağçaları, mağazalar,super-marketlər,avtobus dayanacaqları və s.yerləşir.Mənzilin Qiyməti 302.000 Azn. Xidmət haqqı: ALICI TƏRƏFİNDƏN MƏNZİLİN ÜMUMİ DƏYƏRİNİN 1%-İ

Xəritə

Bazar analitikası

Qiymət / m²

4,422 AZN/m²

Ortadan 49.8% baha

Rayon ort: 2,951 AZN/m²

Xətai

2 951 AZN/m²

Son 6 ay: -4.4%

Rayon orta qiymət

Market

Zeifleme

Son 3 ay: -8.40%

Aktiv: 9575 Yeni: 4607 Tələb: Aşağı
302 000 AZN
Təmirli
P

Pərviz

Etibarlı
Sürətli
Real foto
3 nəfər son 24 saatda baxıb
Çəkiliş sifarişi

Bu sayt düzgün işləmək üçün cookie-lərdən istifadə edir. Ətraflı