Satılır 2 otaqlı mənzil 68.3 m²

Bakı, Xətai · Nəcəfqulu Rəfiyev küç. · Bina.Az

Satış EML-020507 7
16 dəq piyada Nariman Narimanov metrosu

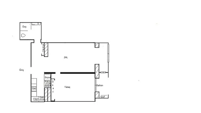
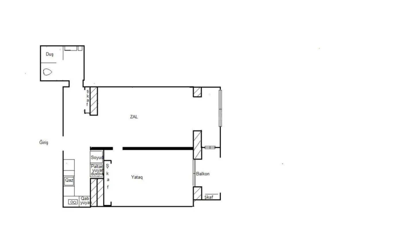
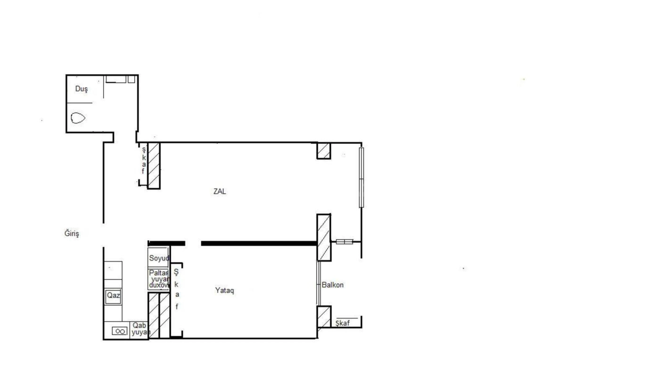
Əmlakın təsviri

Kateqoriya

Mənzil

Ümumi sahə

68.30m²

Otaq sayı

2

Mərtəbə

16 / 20

Təmiri

Təmirli

Təsvir

SATILIR - 2 otaqlı tam temirli menzil | Baku City Residence, Ağ Şeher Ağ Şeherin prestijli yaşayış komplekslerinden biri olan Baku City Residence-da 2 otaqlı, zövqlə temir edilmiş menzil satışa çıxarılıb. Ümumi sahe: 68.3 m2 Otag sayı: 2 Temir: Yüksek keyfiyyetli, tam tamirli Kompleks: Mühafize olunan erazi, süratli liftler, yeraltı parking va diger müasir infrastrukturla techiz olunub. Menzil ideal yerleşmesi ile seçilir - sakit va komfortlu mühit, merkeze yaxınlıq va geniş yaşam imkanları. Satış evin sahibindəndir. Mart ayı çıxarışlar veriləcək.

Xəritə

Bazar analitikası

Qiymət / m²

4,510 AZN/m²

Ortadan 52.8% baha

Rayon ort: 2,951 AZN/m²

Xətai

2 951 AZN/m²

Son 6 ay: -4.5%

Rayon orta qiymət

Market

Zeifleme

Son 3 ay: -8.40%

Aktiv: 9575 Yeni: 4607 Tələb: Aşağı
308 000 AZN
Təmirli
H

Hüseyn

Etibarlı
Sürətli
Real foto
1 nəfər son 24 saatda baxıb
Çəkiliş sifarişi

Bu sayt düzgün işləmək üçün cookie-lərdən istifadə edir. Ətraflı