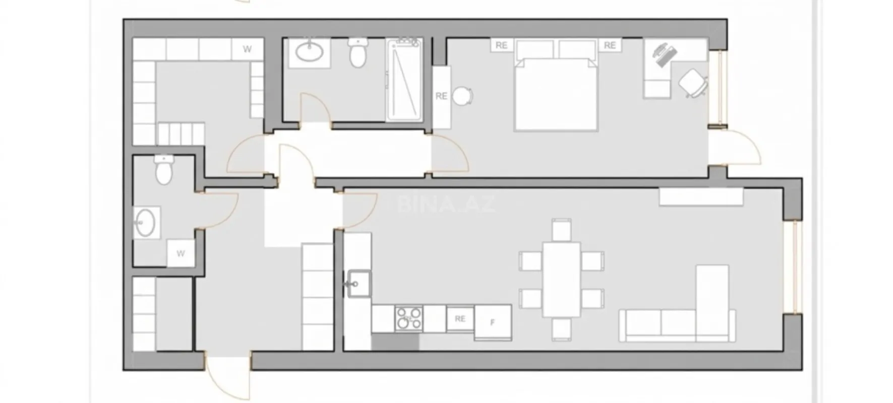
Satılır 2 otaqlı mənzil 100 m²

Bakı · Mirəli Qaşqay küçəsi · Bina.Az

Satış EML-136420 1
3 dəq piyada 28 May metrosu

Əmlakın təsviri

Kateqoriya

Mənzil

Ümumi sahə

100.00m²

Otaq sayı

2

Mərtəbə

4 / 16

Təmiri

Təmirli

Təsvir

Şəxsi evimdir. 3 ildir ki yaşayıram, təmiridə özüm etdirmişəm, bahalı materiallarnan. 1 studio, 1 yataq otagi. Mebel, texnika hamısı qalacaq. Kuxna texnikasi hamisi Samsung. Her otaqda Bosch kondisionerler. İşiq, su, qaz sayğacları var. Qaz yaxın zamanda veriləcək. Sual olsa, zəng və ya wp.

Xəritə

360 000 AZN
Təmirli
R

Rauf

Etibarlı
Sürətli
Real foto
1 nəfər son 24 saatda baxıb
Çəkiliş sifarişi

Bu sayt düzgün işləmək üçün cookie-lərdən istifadə edir. Ətraflı