Kirayə verilir obyekt 84 m²

Bakı, Köhnə Günəşli · Ağ şəhər · Bina.Az

Kirayə EML-026312 10

Əmlakın təsviri

Kateqoriya

Obyekt

Ümumi sahə

84.00m²

Təsvir

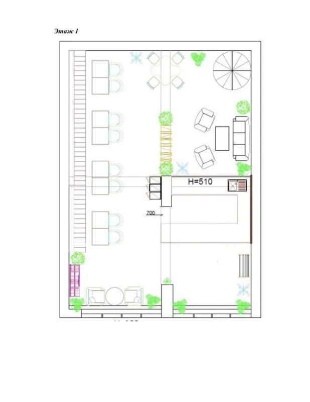
84m2 + 63 m2 antirsol+84 zirzemi. Kafe ucun dizayin xazir

Xəritə

Bazar analitikası

Qiymət / m²

43 AZN/m²

Ortadan 100.7% baha

Rayon ort: 21 AZN/m²

Köhnə Günəşli

4 165 AZN/m²

Son 6 ay: +4.4%

Rayon orta qiymət

Market

Zeifleme

Son 3 ay: -48.40%

Aktiv: 857 Yeni: 502 Tələb: Aşağı
3 600 AZN/ay
S

Səid

Etibarlı
Sürətli
Real foto
2 nəfər son 24 saatda baxıb
Çəkiliş sifarişi

Bu sayt düzgün işləmək üçün cookie-lərdən istifadə edir. Ətraflı