Kirayə verilir obyekt 412 m²

Bakı, Sahil qəs. · Bülbül pr. · Bina.Az

Kirayə EML-074782 5
4 dəq piyada Sahil metrosu

Əmlakın təsviri

Kateqoriya

Obyekt

Ümumi sahə

412.00m²

Təmiri

Təmirli

Təsvir

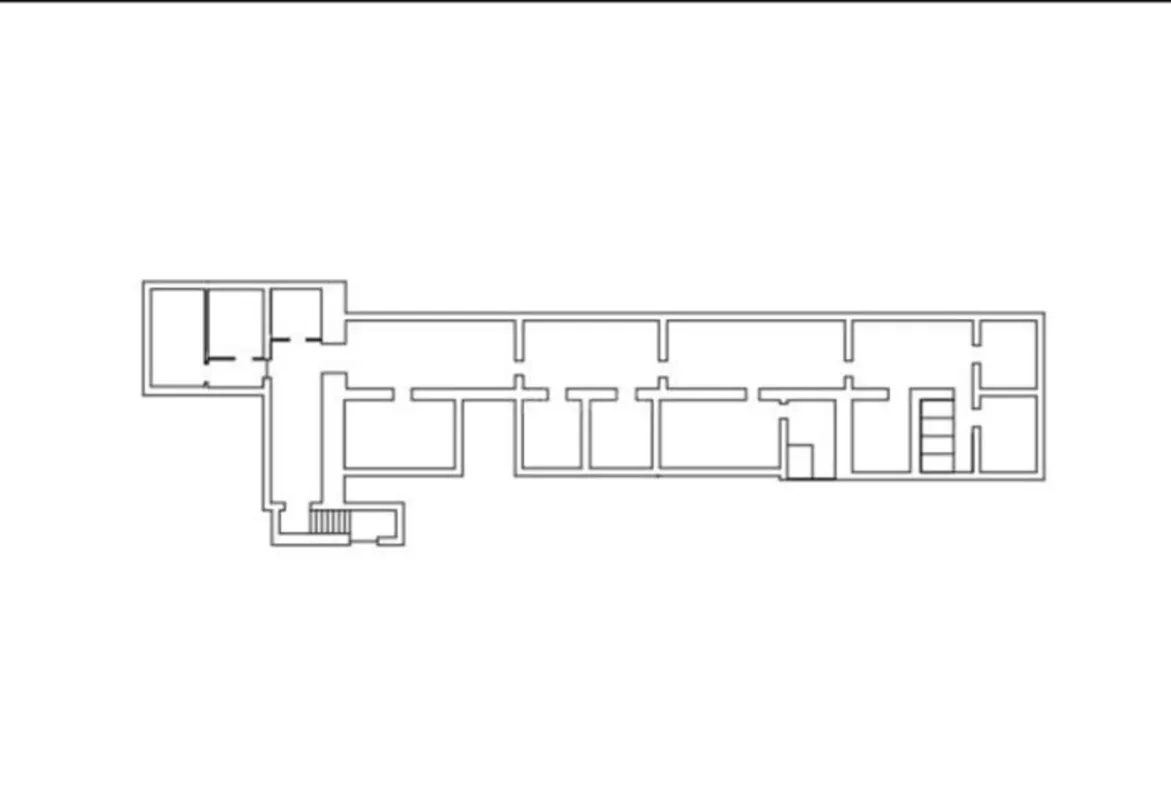
📌 Elan kodunu (№3080) 📍 Rayon: Nəsimi rayonu 🏠 Ünvan: Bülbül prospekti 📐 Sahə:412 kv/m 📊 Mərtəbə:Yarı zirzəmi 🛋️ Otaq sayı:9 (artırmaqda olar) 📝 Qeydlər: Sahil metrosunun yaxınlığında, şəhərin ən prestijli və aktiv biznes zonasında yerləşən yeni təmirdən çıxmış, ümumilikdə 9 ayrıca otaqdan ibarət loft tipli kommersiya obyekti icarəyə verilir. Müasir loft dizayn və tam yeni təmir . Mərkəzi havalandırma və kondisioner sistemi Müstəqil və rahat giriş imkanı . Açıq planlama – istənilən fəaliyyət növünə uyğunlaşdırmaq mümkündür Daxili təhlükəsizlik kamera sistemi Binadaxili giriş-çıxış nəzarət sistemi Əsas giriş qapısında kod və uzaqdan açılma sistemi Məkan üzrə quraşdırılmış səs sistemi və kolonka infrastrukturu (fon musiqisi üçün hazır vəziyyətdə) 4 sanitar qovşağ, ümumi mərkəzi havalandırma sistemi , hər otağda kondisioner mövcuddur. Obyetin arxa çıxışıda müvcuddur. Yarım mərtəbə formatı sayəsində obyekt səs və fəaliyyət baxımından sərbəst istifadə imkanı yaradır və aşağıdakı sahələr üçün ideal seçimdir: — Fitness / pilates studiyası — Təlim və kurs mərkəzi — Ofis və coworking məkanı — Showroom və kreativ studio — Klinik, estetik və wellness mərkəzi — IT və startap ofisi —Otel , hostel tipli Şəhər mərkəzində bu ölçüdə, bu dizaynda və bu səviyyədə təchizatlı obyekt nadir təkliflərdəndir. Uzunmüddətli və ciddi icarəçilərə üstünlük verilir. 📑 Sənəd:Kupça(Qeyri yaşayış) 💵 Aylıq icarə: 7500AZN (Razılaşmaq olar) 💼 Ofis haqqı: 30%. 📞 Ətraflı məlumat üçün whatsappa yaza və ya zəng edə bilərsiniz!

Xəritə

Bazar analitikası

Qiymət / m²

18 AZN/m²

Ortadan 0.4% baha

Rayon ort: 18 AZN/m²

Sahil qəs.

4 840 AZN/m²

Son 6 ay: +7.3%

Rayon orta qiymət

Market

Artim

Son 3 ay: +5.70%

Aktiv: 861 Yeni: 495 Tələb: Aşağı
7 500 AZN/ay
Təmirli
N

Namiq Bəy

Etibarlı
Sürətli
Real foto
1 nəfər son 24 saatda baxıb
Çəkiliş sifarişi

Bu sayt düzgün işləmək üçün cookie-lərdən istifadə edir. Ətraflı